Consultar por esta propiedad
Descripción
Venta/Permuta Departamentos Dos Dormitorios Balcon Aterrazado Amenities. Echesortu
Ubicación Sobre una de las principales avenidas de la ciudad, con acceso directo a distintos puntos de Rosario. Cercano a Av. Francia, Bv. Avellaneda y a minutos del centro.Conectividad mediante múltiples líneas de transporte público y acceso a espacios recreativos y gastronómicos sobre Av. Pellegrini.
Características*Acceso mediante Totem Demarchi las 24hs*Edificio 100% eléctrico*Generador eléctrico de 66Kva (para provision de energía eléctrica)*Planta baja con piscina, solarium, parrillero y quincho
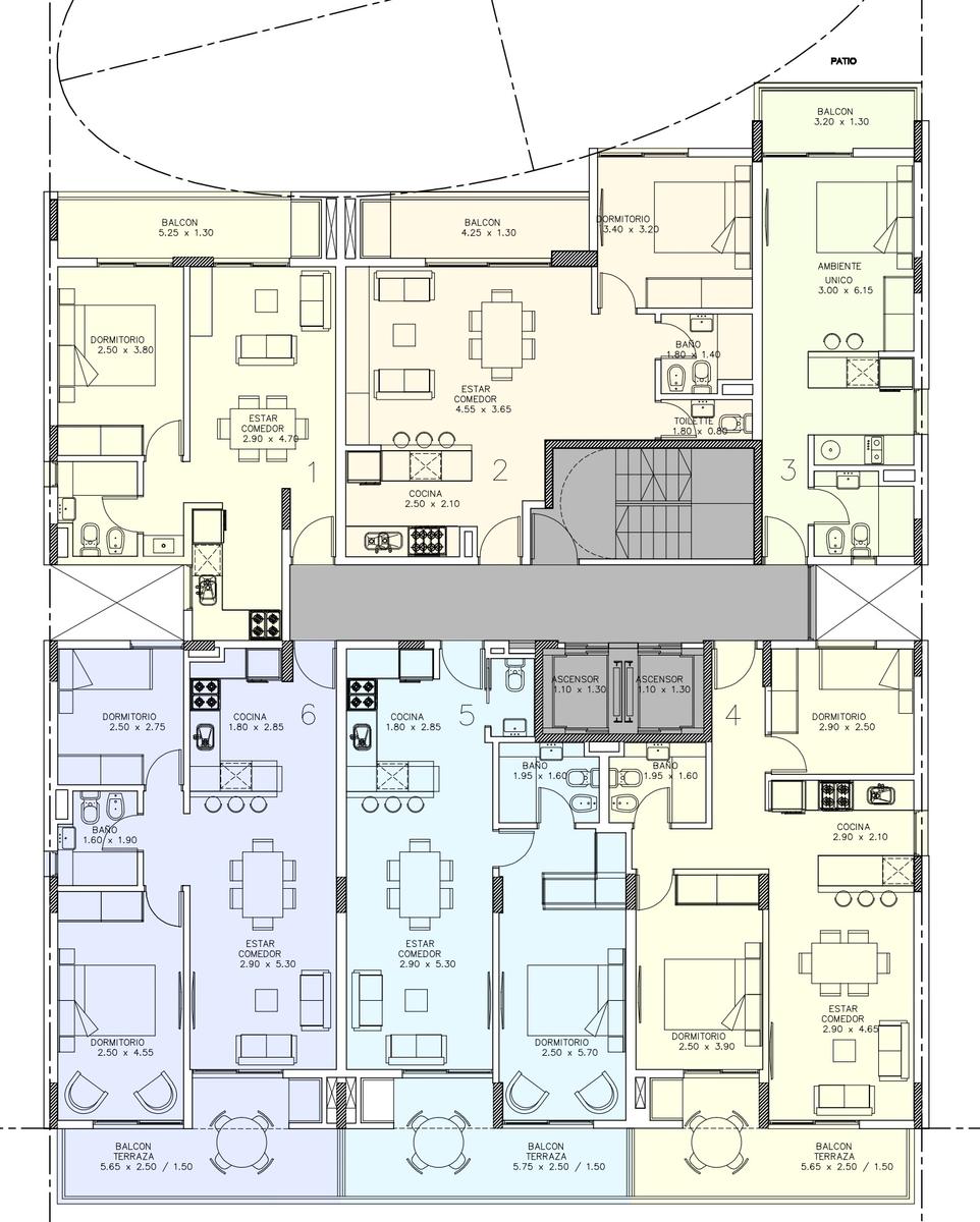
La unidad 4 se ubica en el piso 3 y cuenta con una superficie total de 73,35m² totales, compuesta por 62,24m² cubiertos y 11,35m² de balconPresenta una distribución funcional con cocina integrada al living comedor, con ventilacion natural hacia el norteDos dormitorios con frente de placard, uno en suiteBalcón corrido al frente con parrillero.Cuenta con aberturas de aluminio A40 con doble vidrio hermético.
Cocheras disponibles con baulera en subsuelo mediante rampa fija y medio nivel por rampa movilValor U$S 23.000
Disponible tambien unidades de un dormitorio, y unidades con terraza exclusiva
- Departamento
- Tipo de propiedad
- 2
- Dormitorios
- 1
- Baño
- 1
- Cochera
- 73.54
- M2
Detalles
- ID propiedad 7958136
- Precio $155,600/USD
- Superficie 73.54 M2
- Sup. terreno 73.35 M2
- Dormitorios 2
- Ambientes 3
- Baño 1
- Cochera 1
- Estado propiedad Comercializando, Venta
- Tipo Propiedad Departamento
Características
- Accesibilidad C/ Movilidad Reducida
- Agua Corriente
- Agua Potable
- Aire Acondicionado Individual
- Alumbrado Público
- Amenities
- Amoblado
- Apto Mascotas
- Armarios Empotrados
- Balcón
- Balcón Terraza
- Cable
- Calefacción
- Carpintería De Aluminio
- Categoría
- Cloaca
- Cocina
- Cocina Americana
- Colegio
- Comedor Diario
- Deck
- Detector de Incendios
- Doble Acristalamiento
- Electricidad
- Estilo Moderno
- Generador
- Grupo electrógeno
- Internet
- Lavadero
- Lavandería
- Living Comedor
- Luminoso
- Palier
- Parrilla Techada
- Pavimento
- Permuta
- Persianas
- Pileta
- Pileta Descubierta
- Portones eléctricos
- Preinstalación De Aire Acondicionado
- Puerta blindada
- Quincho
- Red De Desagües Pluviales
- Sala De Reuniones
- Seguridad
- Seguridad 24hs
- Seguridad Digital
- Seguridad portería
- Solarium
- SUM
- Teléfono
- Terraza
- TV Cable En El Edificio
- TV Por Satélite
- Ventanas De Aluminio
- Ventanas Doble Acristalamiento
- Video Cámaras
- Wifi
- Zona apta para turismo
- Zona De Parrillas
Agendar una visita
Similares
San Martin 370 Piso 3 Departamento 3
- $230,000/USD
- Beds: 2
- Baños: 2
- 93 M2
San Martin 370 Piso 5 Departamento 1
- $330,000/USD
- Beds: 3
- Baños: 2
- 110 M2
San Martin 370 Piso 4 Departamento 4
- $320,000/USD
- Beds: 3
- Baños: 2
- 121 M2
Vera Mujica 1195 10 B
- $115,000/USD
- Beds: 2
- Baño: 1
- 54 M2


























