Consultar por esta propiedad
Descripción
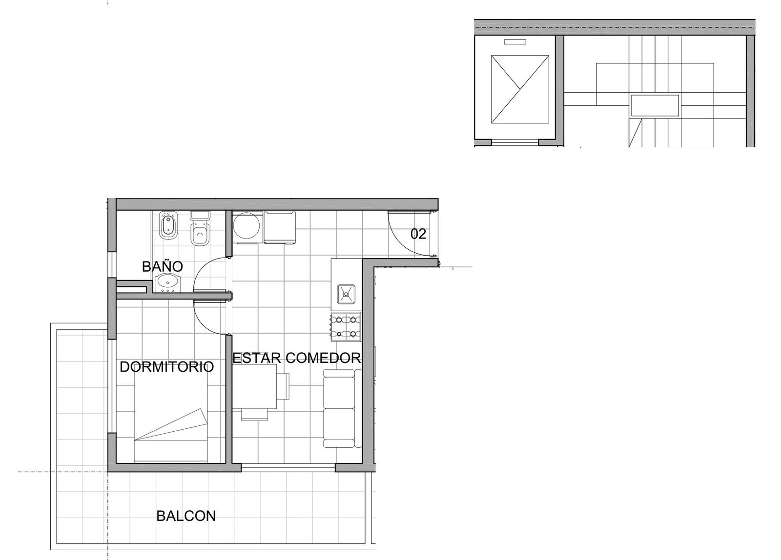
Venta/Financiación Departamento Monoambiente con Balcón. Luis Agote
Unidad: Piso 2 Dpto 1
DescripciónDepartamentos de un dormitorio y monoambientes al frente, terminado, con entrega y financiación en pesos ajustadas al ICAC (ïndice de la cámara de construcción)
Edificio pensado y desarrollado en una zona muy buscada de Rosario, con cercanía a puntos elementales de la ciudad como Universidades o Terminal de Ómnibus.
Calidad constructiva Con terminaciones impecables,pisos y revestimientos con cerámicos de primera calidad. Muebles de cocina a medida completos con alacena y bajo mesada en MDF, mesada de granito gris mara, pileta de acero inoxidable y grifería monocomando. Aberturas de aluminio blancas. Muros interiores pintados en látex, terminaciones exteriores de ladrillo visto combinado con revoque. Placares enchapados en melamina, dos hojas corredizas, con interiores terminados.
CaracterísticasEs un edificio de 4 pisos, compuesto por 8 unidades de un dormitorio y 8 monoambientes.
En planta baja hay un local comercial.
Especificaciones técnicas* Cielorrasos y paredes en yeso terminadas con pintura al latex.
* Aberturas de aluminio blanco.
* Pisos y revestimientos cerámicos de primera calidad.
* Puertas placas blancas con herrajes de primera calidad.
* Muebles de cocina completos: bajo mesada y alacena en MDF enchapados en melamina, mesada de granito gris mara, pileta de acero inoxidable y gritería monocomando de primera calidad .
* Unidades equipadas con termotanque eléctrico.
* Baños equipados con vanitory y bañera en los departamentos de un dormitorio. En los monoambientes se coloca receptáculo de ducha.
* Instalación de cañerías para telefonía y TV cable.
* Hall de ingreso con excelentes terminaciones.
* Terminación exterior de ladrillo visto combinado con revoque.
* Ascensor con cabina de acero inoxidable, espejo, piso de granito, puertas automáticas en cabina y palieres.
Unidad 1, piso 2
Medidadas: 24 mt cubiertos, 4 mt Balcón, 28 mt totales
A estrenar.
- Departamento
- Tipo de propiedad
- 1
- Baño
- 28
- M2
Detalles
- ID propiedad 7269711
- Precio $49,900/USD
- Superficie 28 M2
- Sup. terreno 28 M2
- Ambientes 1
- Baño 1
- Estado propiedad Comercializando, Venta
- Tipo Propiedad Departamento
Características
- Accesibilidad C/ Movilidad Reducida
- Agua Corriente
- Agua Potable
- Aire Acondicionado Individual
- Alumbrado Público
- Amenities
- Amoblado
- Apto Mascotas
- Apto profesional
- Armarios Empotrados
- Ascensor
- Balcón
- Balcón Terraza
- Cable
- Calefacción
- Calefacción Por Gas
- Categoría
- Celular
- Cloaca
- Cocina
- Cocina Americana
- Colegio
- Comedor Diario
- Electricidad
- En Construcción
- Escritorio
- Galería
- Gas Natural
- Hall
- Internet
- Lavadero
- Lavandería
- Living Comedor
- Luminoso
- Palier
- Pavimento
- Persianas
- Preinstalación De Aire Acondicionado
- Seguridad
- Solarium
- SUM
- Teléfono
- Terraza
- TV Cable En El Edificio
- TV Por Satélite
- Ventanas De Aluminio
- Wifi
- Zona apta para turismo
- Zona De Parrillas
- Zonas Verdes
Agendar una visita
Similares
Maipu 2112 Piso 1
- $75,000/USD
- Beds: 2
- Baño: 1
- 54.15 M2
Salta 2448
- $500,000/ARS
- Bed: 0
- Baño: 1
- 40 M2
Alvear 543 – Piso 8 | 2 Dormitorios | Terraza exclusiva
- $344,170/USD
- Beds: 2
- Baños: 2
- 119.34 M2
San Martin 370 Piso 3 Departamento 3
- $230,000/USD
- Beds: 2
- Baños: 2
- 93 M2
