Consultar por esta propiedad
Descripción
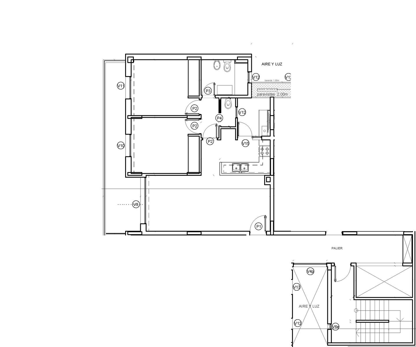
VENTA/FINANCIACION – Departamento – 2 dormitorios – Balcón corrido – Estrenar – Lourdes, Rosario
Superficie cubierta: 64.03m2
Superficie balcón: 13.49m2
Superficie total: 77.52m2
Cochera: disponible en subsuelo en U$S 18.000
Descripción
Ingreso por puerta de seguridad a un amplio living comedor con salida al patio con orientación este, cuenta con cocina semiintegrada en L separada por una amplia barra desayunadora, ventilación natural al norte y puerta de acceso al balcón interno para lavado y tendido de ropa. Volviendo hacia el living comedor se accede al íntimo donde encontramos los dos dormitorios con placard empotrado y amplios ventanales con salida a balcón corrido; a la derecha un toilette, y hacia el final del recorrido se ubica el baño completo con bañera, vanitory flotante, ambos con ventilación natural a un pulmón del edificio.
Cuenta con aberturas DVH 4+9+4, puerta de ingreso de seguridad de 3 anclajes, pisos flotantes de alta resistencia en los dormitorios. Pisos de porcelanato en cocina, comedor, living y baños. Bacha de acero inoxidable Johnson, griferias FV, sanitarios Ferrum, muebles de melamina Super glossy de 18mm con perfil de aluminio anodizado en cocina, y placas texturada en puertas de placard. Todos los ambientes cuentan con preinstalación de aire acondicionado, y preinstalación de radiadores por caldera.
Ubicación
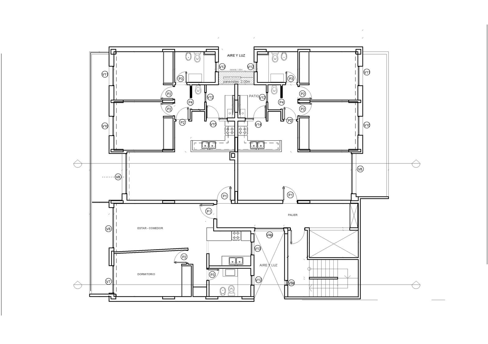
En una zona estratégica de la ciudad de Rosario, sobre Avenida Francia 1169, el edificio NEHUEN ofrece una construcción de calidad garantizada. Una moderna torre de 11 pisos que cuenta con departamentos de 1, 2 y 3 dormitorios, 23 cocheras en planta baja y subsuelo. Además una sofisticada terraza verde con solarium, duchas y asadores.
Características
Todos los departamentos del edificio se destacan por su amplitud, luminosidad, ventilación natural, calidad constructiva y finos detalles de terminación.
Seguridad y confort son otros dos puntos importantes que resaltan, así como la planificación de instalaciones a futuro en materia de tecnología y domótica.
Amenities
-Terraza
-Parrillero
-Quincho semi cubierto
-Pre instalación de domótica
-Bauleras (opcionales)
Financiación personalizada
Entrega estimada: Mayo 2024
- Departamento
- Tipo de propiedad
- 2
- Dormitorios
- 1
- Baño
- 77.52
- M2
Detalles
- ID propiedad 5937474
- Precio $150,000/USD
- Superficie 77.52 M2
- Sup. terreno 77.52 M2
- Dormitorios 2
- Ambientes 3
- Baño 1
- Estado propiedad Comercializando, Venta
- Tipo Propiedad Departamento
Características
- Accesibilidad C/ Movilidad Reducida
- Agua Corriente
- Agua Potable
- Aire Acondicionado Individual
- Alarma
- Alumbrado Público
- Amenities
- Amoblado
- Apto Mascotas
- Apto profesional
- Armarios Empotrados
- Ascensor
- Balcón
- Balcón Terraza
- Baño De Servicio
- Baulera
- Baulera individual
- Cable
- Calefacción
- Calefacción por radiadores
- Calefón
- Categoría
- Celular
- Cloaca
- Cochera Fija
- Cochera Opcional
- Cocina
- Cocina Americana
- Colegio
- Comedor Diario
- Doble Acristalamiento
- Electricidad
- Energia Trifasica
- Estilo Moderno
- Garagistas
- Gas Natural
- Hall
- Instalación eléctrica subterránea.
- Internet
- Laundry
- Lavadero
- Lavandería
- Living Comedor
- Luminoso
- Palier
- Parrilla
- Parrilla Techada
- Pavimento
- Picos De Gas
- Playa de maniobras
- Preinstalación De Aire Acondicionado
- Preinstalación de Calefacción
- Puerta blindada
- Puerta de garaje automática
- Red De Desagües Pluviales
- Seguridad
- Seguridad Digital
- Solarium
- SUM
- Teléfono
- Terraza
- Toilette
- Ventanas De Aluminio
- Ventanas Doble Acristalamiento
- Vestidor
- Wifi
- Zonas Verdes
Agendar una visita
Similares
Cordoba 3633 Piso 2 Departamento 2
- $36,000/USD
- Bed: 0
- Baño: 1
- 27 M2
Paraguay 1459 Piso 2 Unidad A
- $109,000/USD
- Beds: 2
- Baño: 1
- 58 M2
Sarmiento 1748 Piso 2 Dpto 6
- $290,000/ARS
- Bed: 0
- Baño: 1
- 23 M2
Pueyrredon 145 P4 A – 3 Dormitorios Terraza Exclusiva
- $655,800/USD
- Beds: 3
- Baños: 2
- 269 M2