Consultar por esta propiedad
Descripción
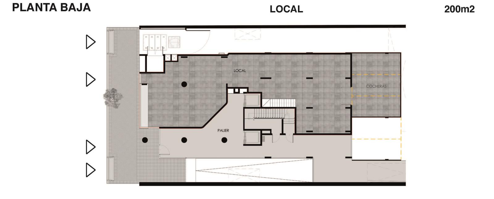
Venta/Financiación Locales Comerciales En Construcción. Centro
UbicaciónEmplazado sobre calle Sarmiento a metros de Av. Pellegrini, cercano a colegios, bancos, supermercado La Gallega, se desarrolla este edificio de PB y 8 pisos de departamentos, con 2 pantas de cocheras y una azotea con terrazas exclusivas y de uso común
Descripción:Local comercial, con baño completo de 183m2 cubiertos, al frente, orientación este
Características:*Aberturas de aluminio con vidrio laminado deseguridad. *Revestimientos en porcelanato y cerámicos.*Instalaciones de aire acondicionado, TV por cable, teléfono einternet. *Termotanque eléctrico.*Equipamiento completo de baños(espejos y accesorios). Sanitarios y griferías.
Fecha de Entrega: Agosto 2027
- Local
- Tipo de propiedad
- 1
- Baño
- 183
- M2
Detalles
- ID propiedad 6875270
- Precio $203,345/USD
- Superficie 183 M2
- Sup. terreno 183 M2
- Ambientes 1
- Baño 1
- Estado propiedad Comercializando, Venta
- Tipo Propiedad Local
Características
Servicios
Ambientes
Adicionales
- Accesibilidad C/ Movilidad Reducida
- Agua Corriente
- Agua Potable
- Aire Acondicionado Individual
- Alarma
- Alumbrado Público
- Amenities
- Amoblado
- Apto Mascotas
- Ascensor
- Balcón
- Balcón Terraza
- Baño De Servicio
- Cable
- Caldera
- Calefacción
- Calefacción central
- Calefacción F/C
- Calefacción Por Gas
- Carpintería De Aluminio
- Categoría
- Cloaca
- Cocina
- Cocina Americana
- Colegio
- Comedor Diario
- Doble Acristalamiento
- Electricidad
- En Construcción
- Gas Natural
- Internet
- Lavandería
- Living Comedor
- Luminoso
- Oficina
- Palier
- Parrilla
- Parrilla individual en departamento
- Parrilla Techada
- Pavimento
- Pileta
- Pileta Descubierta
- Portones eléctricos
- Preinstalación De Aire Acondicionado
- Quincho
- Seguridad
- Solarium
- SUM
- Terraza
- Toilette
- Ventanas De Aluminio
- Ventanas Doble Acristalamiento
- Vestidor
- Wifi
- Zona apta para turismo
- Zonas Verdes
Agendar una visita
Similares
Maipu 2112 Piso 1
- $75,000/USD
- Beds: 2
- Baño: 1
- 54.15 M2
Salta 2448
- $500,000/ARS
- Bed: 0
- Baño: 1
- 40 M2
Alvear 543 – Piso 8 | 2 Dormitorios | Terraza exclusiva
- $344,170/USD
- Beds: 2
- Baños: 2
- 119.34 M2
San Martin 370 Piso 3 Departamento 3
- $230,000/USD
- Beds: 2
- Baños: 2
- 93 M2







