Consultar por esta propiedad
Descripción
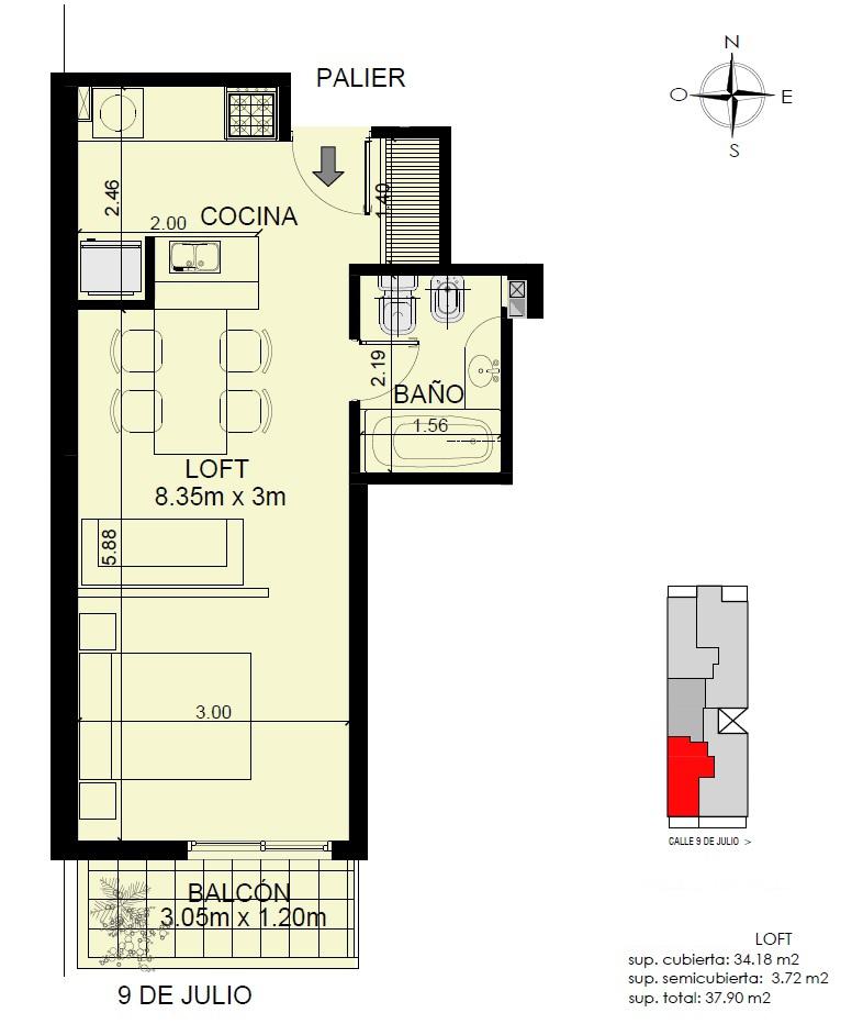
Venta/Financiación Departamento Monoambiente Con Balcón y Amenities – Centro, Rosario
Unidades disponibles02-01/ 03-01/ 04-01
Superficie cubierta 34.18m2
Superficie balcón 3.72m2
Superficie total 37.90m2
Cocheras disponibles no incluidas en el precio de publicación
Descripción
Es un edificio de categoría con calidad solida y distribuciones de plantas pensadas para una vida activa y funcional. Monoambientes divisibles, 1 y 2 dormitorios amplios con espacios de escritorio y pisos exclusivos de 3 dormitorios gigantes con grandes balcones (dobles) y parrilleros exclusivos, espacios de escritorio y 4 baños, en piso 8 hay disponible una unidad con terraza exclusiva.
Calidad constructiva
Excelente terminación con una construcción moderna y sólida. Revoques exteriores con tratamiento hidráulico, en medianeras cámara de aire y aislación térmica. Puertas de ingreso de seguridad, interiores en carpintería de madera y marcos con chapa, placares con hojas corredizas sobre perfil de aluminio, interiores colocados, herrajes de primera calidad, aberturas de aluminio línea Aluar línea Módena con DVH, agua caliente por caldera dual con radiadores para climatización caliente (unidades monoambientes y 1 dormitorio con termotanque/calefón y pico de gas para calefactor), preinstalación para equipos de A/A, pintura interior en látex, pisos de porcelanato en cocina y living-comedor, piso flotante de madera en dormitorios o porcelanatos (a definir). Muebles de cocina completos con mesada de granito o silestone (dependiendo de la unidad), bacha de acero inoxidable, grifería FV o similar, cava de vinos para unidades grandes y espacio técnico para microondas, revestimiento en paredes acorde a piso, no incluye artefacto de cocina. Baño con bañera, revestimiento en cerámico con detalles decorativos en la guarda, loza sanitaria y griferías de primeras marcas. Espacios técnicos para lavadero o lavadero independientes.
Proyecto
Edificio de categoría en el corazón de Rosario, planta baja amplia con sector de living, cocheras por portón automático, 1 ascensor y departamentos distribuidos en 8 pisos con unidades monoambientes, 2 dormitorios más comodín, 1 dormitorio más comodín y pisos exclusivos de 3 dormitorios con parrilleros propios. Control de acceso.
Ubicación
En el centro de la ciudad, con todo a su disposición en un rango corto de cuadras. Zona muy buscada de vivienda o inversión.
Financiación
En dólares hasta en 12 meses.
- Departamento
- Tipo de propiedad
- 1
- Baño
- 40.22
- M2
Detalles
- ID propiedad 5946223
- Precio $63,553/USD
- Superficie 40.22 M2
- Sup. terreno 40.22 M2
- Ambientes 1
- Baño 1
- Estado propiedad Comercializando, Venta
- Tipo Propiedad Departamento
Características
- Accesibilidad C/ Movilidad Reducida
- Agua Corriente
- Agua Potable
- Aire Acondicionado Individual
- Alarma
- Alumbrado Público
- Amenities
- Amoblado
- Apto crédito
- Apto Mascotas
- Apto profesional
- Área de relax
- Ascensor
- Balcón
- Balcón Terraza
- Cable
- Caldera
- Calefacción
- Celular
- Cloaca
- Cochera Fija Cubierta
- Cocina Americana
- Comedor Diario
- Deck
- Doble Acristalamiento
- Electricidad
- Garagistas
- Gas Natural
- Hall
- Internet
- Laundry
- Lavadero
- Living Comedor
- Luminoso
- Ofrece Financiación
- Palier
- Parrilla
- Pavimento
- Picos De Gas
- Potencial alto para alquilar
- Preinstalación De Aire Acondicionado
- Seguridad 24hs
- Teléfono
- Terraza
- Ventanas De Aluminio
- Ventanas Doble Acristalamiento
- Wifi
- Zona apta para turismo
Agendar una visita
Similar Listings
Neuquen 161
- $800,000/USD
- Beds: 2
- Bath: 1
- 143 M2
Vera Mujica 1195 10 D
- $70,000/USD
- Bed: 1
- Bath: 1
- 44.82 M2
Vera Mujica 1195 10 A
- $70,000/USD
- Bed: 1
- Bath: 1
- 45 M2
Iriondo 641 Piso 1 Departamento 3
- $325,000/ARS
- Bed: 0
- Bath: 1
- 29 M2
































