Consultar por esta propiedad
Descripción
VENTA/PERMUTA – Casa – 3 Dormitorios – Piscina y quincho – San Eduardo, Rosario
DescripciónCasa de tres dormitorios con piscina quincho y jardín parquizado con gran terreno.
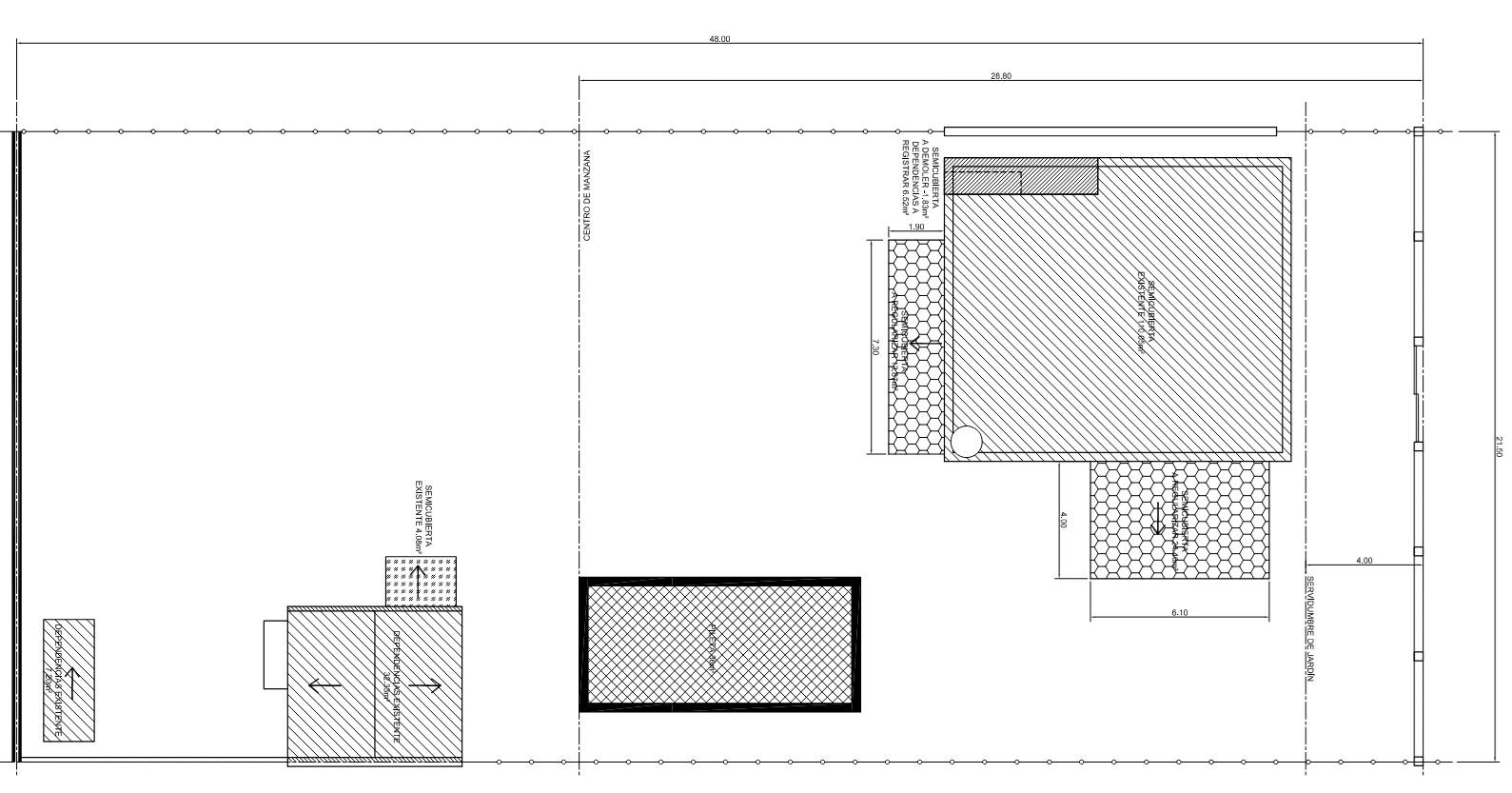
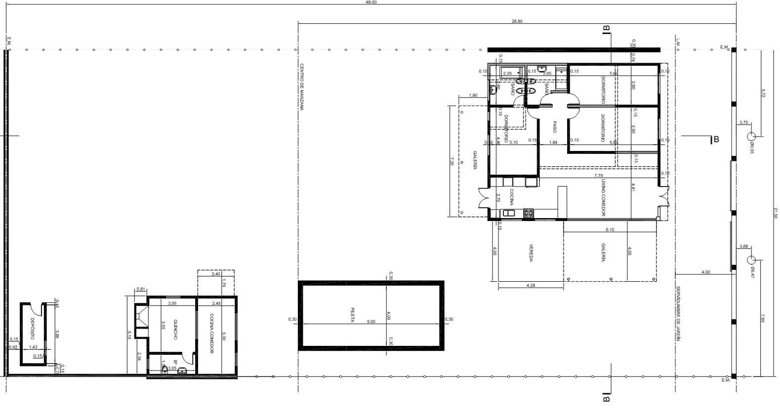
La casa esta construida sobre un lote de 1000 m2, cuenta con un frente de 21,50m por 48 metros de fondo, la orientación es frente norte. Se encuentra desarrollada en una sola planta, y tiene 100 metros cuadrados cubiertos.
Cuenta con oficina al frente, cocina comedor corrido con ventilación cruzada, 3 dormitorios al contrafrente, baño completo y oficina.
El jardín parquizado tiene arboledas añosas de tamaño mediano, cuenta además con una piscina de material 9 metros de largo, 4 metros de ancho y 1,7 metros de profundidad, un quincho instalado con baño de 60 metros cuadrados, con baño, mesada y bacha.
Observaciones: Todos los ambientes cuentan con ventilación natural hacia el jardín.
UbicaciónA 100 metros de Avenida Newbery y se accede desde un portón corredizo en el centro del frente.
Superficie Total: 1,100.0m2
Superficie cubierta: 155.0m2
Superficie semicubierta: 44.18m2
Superficie piscina: 36m2
Medida del frente: 20.0 m
Medida del fondo: 55.0 m
Dormitorios: 3
Baños: 2
Quincho
Parrillero
Piscina
Jardin parquizado
- Casa
- Tipo de propiedad
- 3
- Dormitorios
- 3
- Baños
- 2
- Cocheras
- 1100
- M2
Detalles
- ID propiedad 5928195
- Precio $330,000/USD
- Superficie 1100 M2
- Sup. terreno 199.18 M2
- Dormitorios 3
- Ambientes 6
- Baños 3
- Cocheras 2
- Estado propiedad Comercializando, Venta
- Tipo Propiedad Casa
Características
- Accesibilidad C/ Movilidad Reducida
- Agua Corriente
- Agua Potable
- Alumbrado Público
- Amenities
- Amoblado
- Apto Mascotas
- Armarios Empotrados
- Balcón
- Cable
- Calefacción
- Calefacción Por Gas
- Cloaca
- Cochera Fija Cubierta
- Cocina
- Cocina Americana
- Colegio
- Comedor
- Comedor Diario
- Electricidad
- Galería
- Gas Natural
- Internet
- Jardín
- Lavadero
- Lavandería
- Living
- Living Comedor
- Luminoso
- Parrilla
- Parrilla Techada
- Patio
- Pavimento
- Preinstalación De Aire Acondicionado
- Quincho
- Sala De Reuniones
- Solarium
- Teléfono
- Termo De Gas
- Toilette
- TV Por Satélite
- Ubicación Tranquila
- Vestidor
- Wifi
- Zonas Verdes
Agendar una visita
Similares
Domingo Borghi 501 – Fray Luis Beltran
- $48,000/USD
- Beds: 5
- Baños: 2
- 247.48 M2
Sarmiento 1575- Locales Comerciales
- $194,457/USD
- Bed: 0
- Baño: 1
- 183 M2
Cafferata 342 – Casa de Pasillo 2 dormitorios
- $20,000/ARS
- Beds: 2
- Baño: 1
- 40.15 M2
Neuquen 161
- $800,000/USD
- Beds: 2
- Baño: 1
- 143 M2











































