Consultar por esta propiedad
Descripción
Venta Departamento Un Dormitorio Balcon Amenities. Centro Rio
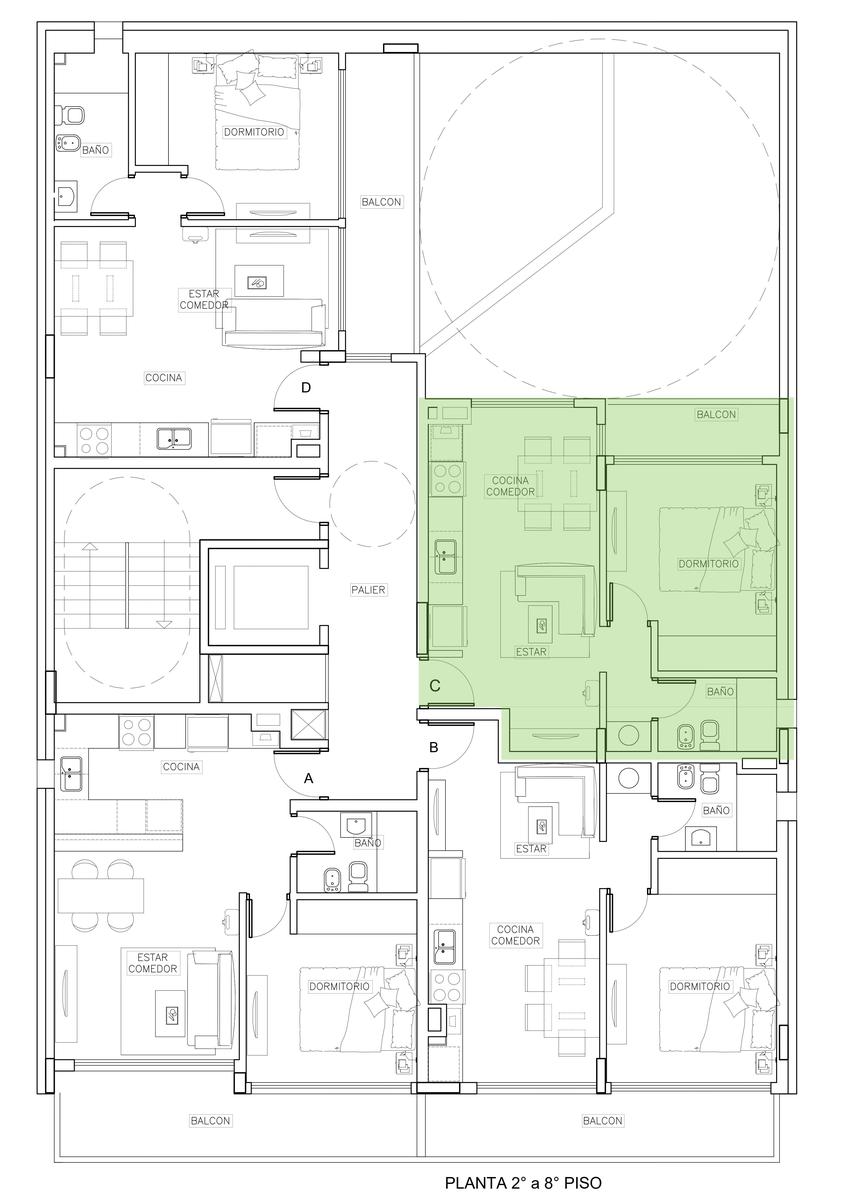
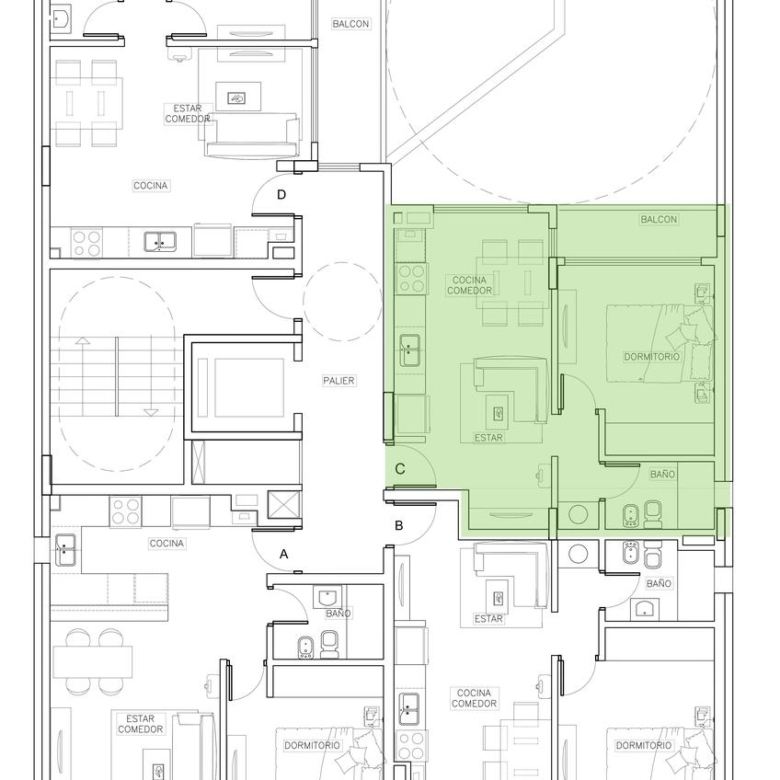
Descripción de la unidadIngresamos a una amplia cocina – comedor con alacena, bajo mesada, caldera, anafe y horno. Con vista al contra frente a través de una ventana de paño fijo que, a su vez, nos brinda una excelente iluminación natural. También, cuenta con una ventana que da al balcón, que ventila el ambiente.El área privada del departamento está compuesta por un ante baño con pileta, cajonera y espejo, luego ingresamos al baño completo que también tiene iluminación natural.Dormitorio con placard, espejo en el mismo y salida al balcón.
CaracterísticasIluminación.Ubicación inmejorable.Seguridad: Puerta blindada.Comodidad: espacios de guardado.Preinstalación de aire acondicionado.
Amenities exclusivos Solarium.Gimnasio completamente equipado y con aire acondicionado.Piscina, para disfrutar de los días de sol y relajarse sin salir de casa.Quincho, con todo lo necesario para compartir con familia y amigos: Parrillero, baño de servicio, mobiliario, balcón y aire acondicionado.
- Departamento
- Tipo de propiedad
- 1
- Dormitorio
- 1
- Baño
- 39.09
- M2
Detalles
- ID propiedad 7938438
- Precio $115,000/USD
- Superficie 39.09 M2
- Sup. terreno 39.09 M2
- Dormitorio 1
- Ambientes 2
- Baño 1
- Estado propiedad Comercializando, Venta
- Tipo Propiedad Departamento
Características
- Accesibilidad C/ Movilidad Reducida
- Agua Corriente
- Agua Potable
- Alarma
- Alumbrado Público
- Amenities
- Amoblado
- Apto Mascotas
- Armarios Empotrados
- Balcón
- Cable
- Calefacción
- Calefacción Por Gas
- Carpintería De Aluminio
- Categoría
- Cloaca
- Cocina
- Cocina Americana
- Comedor Diario
- Deck
- Doble Acristalamiento
- Electricidad
- Estilo Moderno
- Gas Natural
- Internet
- Lavadero
- Lavandería
- Living Comedor
- Luminoso
- Palier
- Parrilla
- Parrilla Techada
- Pavimento
- Picos De Gas
- Pileta
- Pileta Descubierta
- Quincho
- Red De Desagües Pluviales
- Seguridad
- Seguridad Digital
- Teléfono
- Terraza
- TV Cable En El Edificio
- Ventanas De Aluminio
- Ventanas Doble Acristalamiento
- Wifi
- Zona apta para turismo
- Zona De Parrillas
- Zonas Verdes
Agendar una visita
Similares
Zeballos 2547 – Unidad 2
- $259,000/USD
- Beds: 3
- Baños: 3
- 207.52 M2
Zeballos 2547 -Unidad 1
- $249,000/USD
- Beds: 3
- Baños: 3
- 197.84 M2
Salta 1828 Piso 1 Departamento C
- $139,000/USD
- Bed: 1
- Baño: 1
- 63.85 M2
Avenida Pellegrini 3864 Piso 5 Unidad 4
- $148,800/USD
- Bed: 1
- Baño: 1
- 71.12 M2















