Consultar por esta propiedad
Descripción
Venta Departamento 3 Dormitorios A Estrenar. Fisherton, Rosario
Zona:
-Se ubicado por calle Wilde entre las calles Bv Argentino y Av Morrison, frente a su emblemática Plaza.
-A pocos minutos del Jockey Club
Proyecto:
Town Houses Green Wilde 455 bis Este proyecto residencial exclusivo se encuentra ubicado en Fisherton, en la prestigiosa calle Wilde, una ubicación que combina la tranquilidad de un barrio residencial con la comodidad de estar cerca de servicios, comercios y áreas verdes. Cuenta con 15 unidades habitacionales, que van desde opciones de 2 a 4 dormitorios, y departamentos de 2 dormitorios con terrazas verdes exclusivas. En la imponente terraza verde se encuentra proyectado el skybar compuesto de:- Living in & out
- Fogonero
- Barra in & out
Unidad 00 - 11:
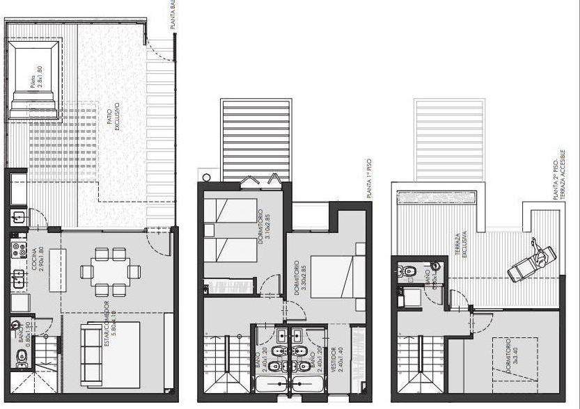
La propiedad cuenta con ingreso a un amplio patio de uso exclusivo con pileta propia de 2,80m x 1,80m y parrillero techado. Esta hermosa casa cuenta con enormes aberturas corredizas y 2 puertas al patio, logrando una excelente iluminación y unión con ese hermoso espacio verde. Al ingresar nos encontramos con un amplio estar comedor de 5,80m x 4,10m, una cocina semi integrada de 2,90m x 1,80m y una separación generada por una isla amplia isla, a su vez en tenemos un baño estilo Toilette para el sector social. En la Primer planta tenemos 2 dormitorios completos y 2 baños completos, el dormitorio mas pequeño cuenta con 3,10m x 2,85m y placard empotrado, mientras que el dormitorio principal cuenta con una medida de 3,30m x 2,85m, balcón de acceso exclusivo, un enorme vestidor de 2,40m x 1,27m y su baño en suite de 2,40m x 1,30m. En el segunda planta, tenemos el tercer dormitorio el cual tiene unas dimensiones de 3,00m x 3,40m con placard empotrado y una gigante terraza de uso exclusiva, a la cual podes acceder desde el dormitorio o desde el distribuidor sin necesidad de ingresar, además cuenta con un baño estilo toillete y lavadero.
Terminaciones:
-Balcón al frente.
-Pisos de ingeniería en dormitorios.
-Todos los dormitorios con cortina de enrollar.
-Aberturas de aluminio anodizado con vidrios DVH.
-Caldera dual, para calefacción y agua caliente.
-Pre instalación de aire acondicionado.
-Dormitorio principal en suite con vestidor.
-Baños con mesadas de mármol, totalmente equipados.
-Cocina con mueble de guardado de piso a techo y mesadas de granito
-Horno y anafe a gas
-Lavadero.
-Iluminación: artefactos de balcones, tomas y llaves.
Fecha de entrega: Entrega Febrero 2026.
Forma de Pago: Contado (Se evalúan ofertas).
Cocheras: Opcionales desde los u$s 23.100 (para vehículos pequeños)
NOTA: Las medidas informadas incluyen el 50% de los muros medianeros y el 100% de los muros interiores. No es permitida su utilización comercial. Las medidas y superficies expuestas son estimativas y a corroborar con sus respectivos planos y títulos. La publicación de este inmueble es a solo título informativo, la venta de la propiedad está supeditada a que el propietario cumplimente el trámite ante la AFIP para la obtención del Número de COTI correspondiente. La información no es contractual.
- Casa
- Tipo de propiedad
- 3
- Dormitorios
- 2
- Baños
- 115
- M2
Detalles
- ID propiedad 7225681
- Precio $250,000/USD
- Superficie 115 M2
- Sup. terreno 169 M2
- Dormitorios 3
- Ambientes 4
- Baños 2
- Estado propiedad Comercializando, Venta
- Tipo Propiedad Casa
Características
- Accesibilidad C/ Movilidad Reducida
- Agua Corriente
- Agua Potable
- Alarma
- Alumbrado Público
- Amenities
- Armarios Empotrados
- Balcón
- Balcón Terraza
- Cable
- Caldera
- Caldera individual
- Calefacción
- Calefacción por radiadores
- Carpintería De Aluminio
- Cloaca
- Cochera Opcional
- Cochera subterránea
- Cocina
- Cocina Americana
- Condominio
- Control De Acceso
- Detector de Incendios
- Doble Acristalamiento
- Edificio/Zona
- Electricidad
- En Construcción
- Estilo Moderno
- Galería
- Garagistas
- Gas Natural
- Gimnasio
- Internet
- Juegos para niños
- Living Comedor
- Parrilla
- Patio
- Pavimento
- Pileta
- Preinstalación De Aire Acondicionado
- Riego Automático
- Seguridad 24hs
- Seguridad Digital
- Solarium
- Tarjetas magnéticas
- Teléfono
- Terraza
- Toilette
- Ubicación residencial
- Ubicación Tranquila
- Ventanas Doble Acristalamiento
- Vestidor
- Video Cámaras
- Wifi
- Zonas Verdes
Agendar una visita
Similares
Maipu 2112 Piso 1
- $75,000/USD
- Beds: 2
- Baño: 1
- 54.15 M2
Salta 2448
- $500,000/ARS
- Bed: 0
- Baño: 1
- 40 M2
Alvear 543 – Piso 8 | 2 Dormitorios | Terraza exclusiva
- $344,170/USD
- Beds: 2
- Baños: 2
- 119.34 M2
San Martin 370 Piso 3 Departamento 3
- $230,000/USD
- Beds: 2
- Baños: 2
- 93 M2
