Consultar por esta propiedad
Descripción
Venta/Financiación Departamento Dos Dormitorios Categoria. Pichincha
Piso 5 Unidad A
GENERALIDADES
El proyecto se distribuye en planta baja y 9 pisos.
Es un tipo de edificación en el que se hace hincapié en el confort térmico y acústico, para esto utilizamos materiales como retak, dvh en las aberturas, doble muro, persianas eléctricas y toldos en balcón según cada caso.
Cuenta con dos plantas de cochera, una en el subsuelo y otra en planta baja.
En el primer piso se ubica al frente la oficina, la misma tiene doble ingreso, uno por el ingreso directo de calle alvear y su segundo ingreso por el palier del primer piso. En el contra frente se encuentran los amenitis siendo gimnasio, quincho y sector de patios descubierto y semi descubierto.
- Desde el piso 2 hasta el piso 4 se desarrollan unidades de 2 dormitorios frentistas y unidades de 1 dormitorio y monoambiente contra frentistas.
- en el piso 5 se encuentran las unidades de 2 dormitorios.
-Unidad 6º a: es un dúplex de 3 dormitorios. con terraza exclusiva. dicho departamento se desarrolla en los pisos 6 y 7.
-Unidad 6º b: 2 dormitorios, con terraza exclusiva que se desarrolla también en el 7º piso.
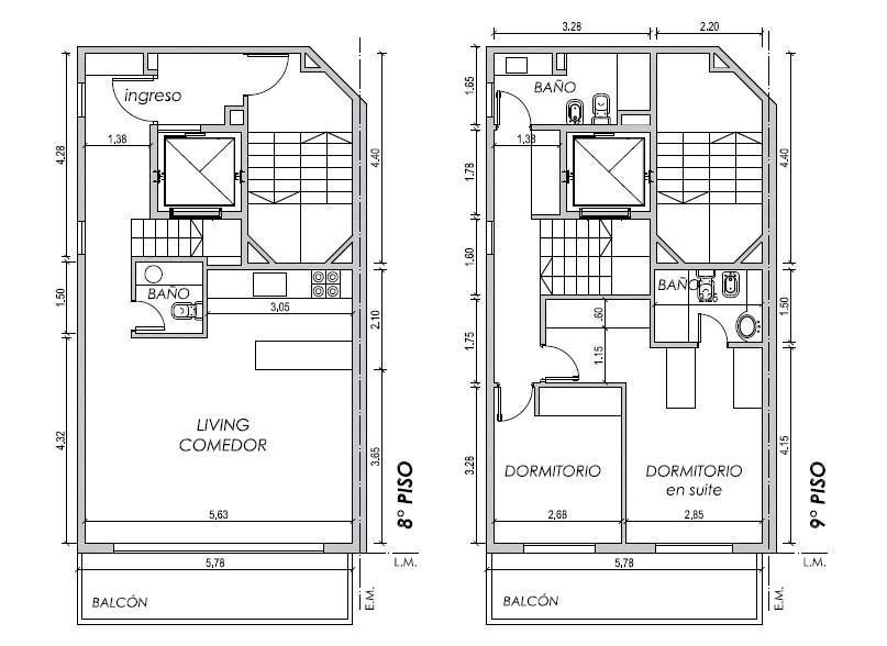
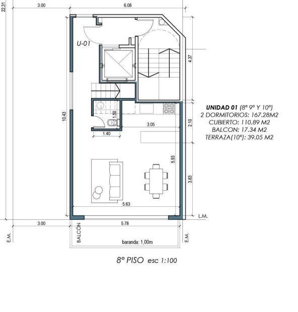
-Unidad 8º a: 2 dormitorios, desarrollado en dicho piso cocina living comedor, en el piso 9 los dormitorios y en el piso 10 terraza exclusiva con ingreso directo desde el departamento.
FECHA DE ENTREGA Octubre 2026.
TERMINACIONES
- Aberturas exteriores en aluminio Aluar Línea Modena.
- Sistema de calefacción por radiadores
- Cortinas de enrollar motorizadas.
- Puertas de seguridad con 5 puntos de contacto
- Porcelanato de alto tránsito en living, cocina y comedor
- Piso flotante en habitaciones
- Placar incorporado con puertas corredizas en dormitorios
- Mesada de granito
- Muebles de cocina con alacena y bajo mesada
-Horno y anafe Longvie de acero inoxidable
- Artefactos Ferrum en baño y grifería FV
- Preinstalación de aire acondicionado
- Paredes interiores revestidas en yeso
- Zócalos de madera
COCHERA: Opcional USD 22.290
FORMA DE PAGO
Contado o Financiado: Se ingresa al fideicomiso, con un 30 % del valor total de la unidad, y el resto se divide en cuotas que se realizan durante los 36 meses de construcción de obra (es decir mensualmente), las cuales, se incrementan con la cámara de la construcción.
- Departamento
- Tipo de propiedad
- 2
- Dormitorios
- 2
- Baños
- 85.6
- M2
Detalles
- ID propiedad 6837343
- Precio $235,640/USD
- Superficie 85.6 M2
- Sup. terreno 85.6 M2
- Dormitorios 2
- Ambientes 3
- Baños 2
- Estado propiedad Comercializando, Venta
- Tipo Propiedad Departamento
Características
- Accesibilidad C/ Movilidad Reducida
- Agua Corriente
- Agua Potable
- Aire Acondicionado Individual
- Alarma
- Amoblado
- Apto Mascotas
- Armarios Empotrados
- Ascensor
- Balcón
- Cable
- Caldera
- Calefacción
- Carpintería De Aluminio
- Categoría
- Cloaca
- Cocina
- Cocina Americana
- Colegio
- Comedor Diario
- Doble Acristalamiento
- Electricidad
- En Construcción
- Estilo Moderno
- Gas Natural
- Internet
- Lavadero
- Lavandería
- Living Comedor
- Luminoso
- Palier
- Parrilla
- Parrilla Techada
- Pavimento
- Pileta
- Pileta Descubierta
- Preinstalación De Aire Acondicionado
- Quincho
- Seguridad
- Solarium
- SUM
- Teléfono
- Terraza
- Ubicación Tranquila
- Ventanas De Aluminio
- Vestidor
- Video Cámaras
- Wifi
- Zonas Verdes
Agendar una visita
Similares
Maipu 2112 Piso 1
- $75,000/USD
- Beds: 2
- Baño: 1
- 54.15 M2
Salta 2448
- $500,000/ARS
- Bed: 0
- Baño: 1
- 40 M2
Alvear 543 – Piso 8 | 2 Dormitorios | Terraza exclusiva
- $344,170/USD
- Beds: 2
- Baños: 2
- 119.34 M2
San Martin 370 Piso 3 Departamento 3
- $230,000/USD
- Beds: 2
- Baños: 2
- 93 M2




















