Consultar por esta propiedad
Descripción
Venta/Financiacion Local En Construccion. Abasto
UBICACIÓN
El Proyecto de arquitectura se ubica en la ciudad de Rosario, Santa Fe, específicamente en el distrito centro de la ciudad. El proyecto se encuentra sobre la calle Pte. Roca entre Ituzaingó y Pasco. Esta área, conocida por su mezcla residencial y comercial, ofrece un entorno dinámico y accesible. La proximidad a la Av. Pellegrini proporciona fácil acceso al transporte público y a una variedad de servicios como escuelas, hospitales y parques. La topografía plana de la región y el clima templado hacen que sea una ubicación ideal para proyectos residenciales. Las regulaciones locales permiten la construcción de edificaciones de mediana altura, lo que asegura una integración armónica con el entorno. Con un valor del suelo en aumento, esta área es una opción atractiva para inversiones sostenibles.
CARACTERÍSTICAS
Edificio residencial de diseño moderno y estilo minimalista, que utiliza materiales locales, con una estructura de 6 plantas. Consta de 16 unidades de un dormitorio, un piso exclusivo de 3 dormitorios, un consultorio/departamento en planta baja y un local comercial al frente.
ESPECIFICACIONES TÉCNICAS
– Cielorrasos y paredes en yeso terminadas con pintura al látex.
– Aberturas de aluminio negro, Línea Modena.
– Pisos y revestimientos porcellanato de primera calidad.
– Puertas placa con herrajes de primera calidad.
– Placares con frentes corredizos enchapados en melanina y guías de aluminio.
– Muebles de cocina completos: bajo mesada y alacena en MDF enchapadas en melanina, mesada
de granito, pileta de acero inoxidable y grifería monocomando de primera calidad.
– Unidades equipadas con termotanque eléctrico.
– Baños equipados con vanitory y receptáculo de ducha.
– Instalación de cañerías para televisión e internet.
– Hall de ingreso con excelentes terminaciones.
– Terminación exterior de ladrillo visto combinado con revoque.
– Ascensor con cabina de acero inoxidable, espejo, piso de granito, puertas automáticas de cabina
y palieres.
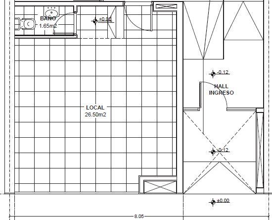
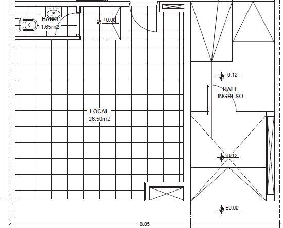
Local al Frente
Medidas: 36 mt2
*Las fotos son de construcción similar, ya que aún no está terminado*
Fecha de entrega: JULIO 2027
- Local
- Tipo de propiedad
- 1
- Baño
- 36
- M2
- -1
- Antigüedad
Detalles
- ID propiedad 6807390
- Precio $57,750/USD
- Superficie 36 M2
- Sup. terreno 36 M2
- Ambientes 1
- Baño 1
- Antiguedad -1
- Estado propiedad Comercializando, Venta
- Tipo Propiedad Local
Características
- Accesibilidad C/ Movilidad Reducida
- Agua Corriente
- Agua Potable
- Alumbrado Público
- Amoblado
- Apto Mascotas
- Apto profesional
- Armarios Empotrados
- Ascensor
- Balcón
- Cable
- Calefacción
- Calefacción Por Gas
- Carpintería De Aluminio
- Cloaca
- Cocina
- Colegio
- Comedor Diario
- Doble Acristalamiento
- Electricidad
- En Construcción
- Gas Natural
- Internet
- Lavadero
- Lavandería
- Living Comedor
- Luminoso
- Palier
- Parrilla
- Pavimento
- Persianas
- Picos De Gas
- Preinstalación De Aire Acondicionado
- Red De Desagües Pluviales
- Seguridad
- Solarium
- Teléfono
- Terraza
- Ubicación Tranquila
- Ventanas De Aluminio
- Ventanas Doble Acristalamiento
- Wifi
- Zonas Verdes
Agendar una visita
Similares
Avenida Arturo Illia 397
- $530,000/USD
- Beds: 3
- Baños: 3
- 800 M2
Avenida Arturo Illia 397
- $530,000/USD
- Beds: 3
- Baños: 3
- 800 M2
San Patricio 824 – Dpto 2
- $70,000/USD
- Beds: 2
- Baño: 1
- 115 M2
Urquiza y Corrientes – Ibarlucea Centro
- $28,000/USD
- Bed: 0
- Baño: 0
- 300 M2