Consultar por esta propiedad
Descripción
Venta Departamento Reciclado Tres Dormitorios Suite Balcon Cochera. Centro
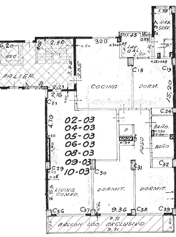
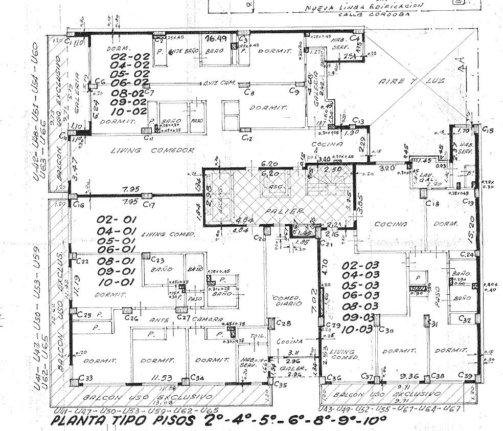
Ubicado en el piso 10 en la esquina de Paraguay y Peatonal Cordoba se encuentra este departamento con 3 unidades funcionales por planta.La cochera se ubica en Paraguay 851 segundo subsuelo no incluida en el precio. Posibilidad de cochera dentro del edificio
Superficie cubierta : 147,21 m2Superficie balcon : 14,65 m2
La cocina comedor con Barra y anafe Instalado, completamente reciclada en estética e instalaciones; desde la cocina se accede al sector lavadero independiente con bacha y espacio para lavarropas y secarropas y también se accede al sector intimo. Los dormitorios el principal en suite con baño reciclado a nuevo, dos dormitorios secundarios, amplios con placares y salida al balcón corrido al frente y el segundo baño tambien reciclado a nuevo.
Cuenta con refrigeración y calefacción centralizada en la unidad.
Construcción sólida y de categoría con ingreso de jerarquía Seguridad por cámaras de monitoreo y sistema de llavero electrónico.
Opcional adquirir cochera en el mismo edificio.
- Departamento
- Tipo de propiedad
- 3
- Dormitorios
- 2
- Baños
- 1
- Cochera
- 161.86
- M2
- 42
- Antigüedad
Detalles
- ID propiedad 6237175
- Precio $195,000/USD
- Superficie 161.86 M2
- Sup. terreno 161.86 M2
- Dormitorios 3
- Ambientes 6
- Baños 2
- Cochera 1
- Antiguedad 42
- Estado propiedad Comercializando, Venta
- Tipo Propiedad Departamento
Características
- Accesibilidad C/ Movilidad Reducida
- Agua Corriente
- Agua Potable
- Aire Acondicionado Individual
- Alarma
- Alumbrado Público
- Amoblado
- Apto Mascotas
- Armarios Empotrados
- Balcón
- Balcón Terraza
- Cable
- Caldera
- Calefacción central
- Calefacción por aire
- Carpintería De Aluminio
- Categoría
- Cloaca
- Cochera Fija
- Cocina
- Colegio
- Comedor Diario
- Electricidad
- Encargado
- Escritura Inmediata
- Estilo Moderno
- Garagistas
- Gas Natural
- Instalación eléctrica subterránea.
- Internet
- Laundry
- Lavadero
- Living Comedor
- Luminoso
- Palier
- Parquet
- Parrilla
- Pavimento
- Persianas
- Picos De Gas
- Preinstalación De Aire Acondicionado
- Puerta blindada
- Sala De Reuniones
- Seguridad
- Seguridad de día
- Seguridad Nocturna
- Semi piso
- Teléfono
- Terraza
- Ventanas De Aluminio
- Vestidor
- Video Cámaras
- Wifi
- Zona apta para turismo
- Zonas Verdes
Agendar una visita
Similares
Maipu 2112 Piso 1
- $75,000/USD
- Beds: 2
- Baño: 1
- 54.15 M2
Salta 2448
- $500,000/ARS
- Bed: 0
- Baño: 1
- 40 M2
Alvear 543 – Piso 8 | 2 Dormitorios | Terraza exclusiva
- $344,170/USD
- Beds: 2
- Baños: 2
- 119.34 M2
San Martin 370 Piso 3 Departamento 3
- $230,000/USD
- Beds: 2
- Baños: 2
- 93 M2























