Consultar por esta propiedad
Descripción
Venta/ Financiación Departamentos Un Dormitorio Balcón Amenities. Centro Rio
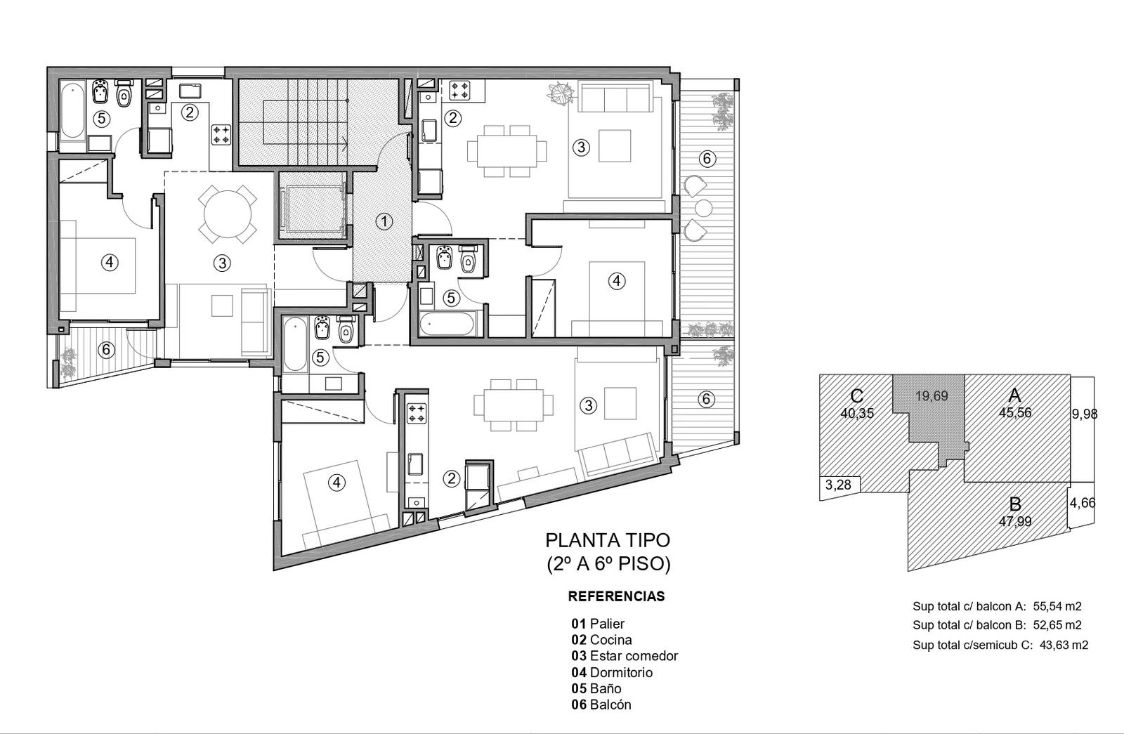
Piso 2, Unidad 3.
Superficie cubierta 40,35m2
Superficie balcon: 3,28m2
Consultar por otras unidades disponibles.
Inicia tu inversión en un desarrollo sólido, moderno y con alto potencial de rentabilidad.
El Edificio India, en construcción bajo la modalidad de fideicomiso, se emplaza en calle Alvear al 1400, en el corazón de Rosario, con cercanía a universidades, centros de salud, Bv. Oroño y áreas recreativas.
Este proyecto ofrece una excelente oportunidad para inversores y usuarios finales, conunidades funcionales y cómodas, y un local comercial en planta baja que potenciará ladinámica del edificio.
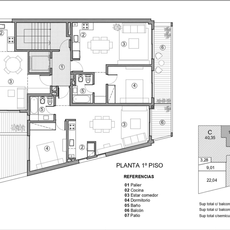
Características del Proyecto:* Edificio de Planta Baja + 6 pisos + Terraza con amenities* Local comercial en PB (único)* Unidades de 1 dormitorio desde 43 m² a 55 m² (con patios en primeros pisos o amplios balcones en pisos superiores)
* Orientación frente Este, con excelente luminosidad natural* Amenities en terraza: SUM, parrillero, piscina, solárium y terraza de uso común* Espacio para bicicletero* Posibilidad de financiación durante obra* Preventa con precios promocionales de lanzamientoIdeal para:* Inversores que buscan alta demanda de alquiler* Primeras viviendas con bajos costos de ingreso* Oportunidades de plusvalía asegurada en preventa
Fecha de entrega: Noviembre 2027
- Departamento
- Tipo de propiedad
- 1
- Dormitorio
- 1
- Baño
- 1
- Cochera
- 43.63
- M2
- -1
- Antigüedad
Detalles
- ID propiedad 7932069
- Precio $84,000/USD
- Superficie 43.63 M2
- Sup. terreno 43.63 M2
- Dormitorio 1
- Ambientes 2
- Baño 1
- Cochera 1
- Antiguedad -1
- Estado propiedad Comercializando, Venta
- Tipo Propiedad Departamento
Características
- Accesibilidad C/ Movilidad Reducida
- Agua Corriente
- Agua Potable
- Alumbrado Público
- Amenities
- Amoblado
- Apto Mascotas
- Balcón
- Balcón Terraza
- Cable
- Calefacción
- Calefacción Por Gas
- Carpintería De Aluminio
- Cloaca
- Cocina
- Cocina Americana
- Colegio
- Comedor Diario
- Detector de Incendios
- Electricidad
- En Construcción
- Gas Natural
- Internet
- Lavadero
- Lavandería
- Living Comedor
- Palier
- Parrilla
- Parrilla Techada
- Patio
- Pavimento
- Picos De Gas
- Pileta
- Pileta Descubierta
- Red De Desagües Pluviales
- Seguridad
- SUM
- Teléfono
- Terraza
- TV Cable En El Edificio
- Ubicación Tranquila
- Ventanas De Aluminio
- Ventanas Doble Acristalamiento
- Wifi
- Zona apta para turismo
- Zona De Parrillas
- Zonas Verdes
Agendar una visita
Similares
Alvear 543 – Piso 8 | 2 Dormitorios | Terraza exclusiva
- $344,170/USD
- Beds: 2
- Baños: 2
- 119.34 M2
San Martin 370 Piso 3 Departamento 3
- $230,000/USD
- Beds: 2
- Baños: 2
- 93 M2
San Martin 370 Piso 5 Departamento 1
- $330,000/USD
- Beds: 3
- Baños: 2
- 110 M2
San Martin 370 Piso 4 Departamento 4
- $320,000/USD
- Beds: 3
- Baños: 2
- 121 M2
























