Consultar por esta propiedad
Descripción
Venta Departamento Semipiso 3 Dormitorios Reciclado de Autor Centro
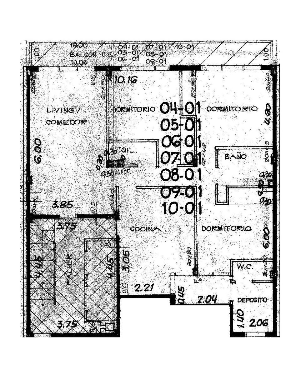
Descubra este exclusivo departamento de 3 dormitorios, uno de ellos en suite, ubicado en pleno centro de Rosario. Este inmueble ha sido cuidadosamente reciclado, ofreciendo una perfecta combinación de diseño moderno y funcionalidad. Todos los dormitorios están equipados con armarios empotrados, garantizando un amplio espacio de almacenamiento.
El departamento cuenta con 2 baños completos y un toilette de recepción, diseñados con loza sanitaria y griferías de primeras marcas. El amplio estar comedor, junto con una cocina semi-integrada que incluye isla, alacenas y bajo mesadas, crea un ambiente ideal para la vida familiar. La cocina está equipada con horno eléctrico, anafe a gas, y espacio técnico para heladera.
Disfrute de la ventilación cruzada y la iluminación natural gracias a los grandes ventanales y los dobles balcones, uno al frente y otro al contrafrente. El balcón posterior alberga un lavadero independiente. Los materiales de calidad, como pisos flotantes vinílicos, porcelanato en espacios húmedos y microcemento laqueado en revestimientos, aseguran durabilidad y estilo.
El edificio de planta baja más 12 pisos dispone de 2 ascensores y locales comerciales en planta baja, ofreciendo comodidad y acceso a servicios esenciales. La ubicación es inmejorable, con acceso a una amplia gama de servicios como agua corriente, gas natural, electricidad, internet, y más, todo en un radio cercano.
Este departamento no cuenta con cochera, pero su ubicación céntrica facilita el acceso a transporte público y servicios. Ideal para quienes buscan un hogar moderno en el corazón de la ciudad.
- Departamento
- Tipo de propiedad
- 3
- Dormitorios
- 2
- Baños
- 108
- M2
Detalles
- ID propiedad 7830178
- Precio $160,000/USD
- Superficie 108 M2
- Sup. terreno 110 M2
- Dormitorios 3
- Ambientes 4
- Baños 2
- Estado propiedad Comercializando, Venta
- Tipo Propiedad Departamento
Características
- Accesibilidad C/ Movilidad Reducida
- Agua Corriente
- Agua Potable
- Alumbrado Público
- Amoblado
- Apto Mascotas
- Armarios Empotrados
- Balcón
- Balcón Terraza
- Cable
- Calefacción
- Cloaca
- Cocina
- Cocina Americana
- Colegio
- Comedor Diario
- Electricidad
- Escritorio
- Escritura Inmediata
- Gas Natural
- Internet
- Lavadero
- Lavandería
- Living Comedor
- Luminoso
- Palier
- Pavimento
- Picos De Gas
- Red De Desagües Pluviales
- Semi piso
- Teléfono
- Terraza
- TV Cable En El Edificio
- TV Por Satélite
- Ventanas De Aluminio
- Wifi
Agendar una visita
Similares
Pichincha 77 Rosario
- $440,000/USD
- Beds: 3
- Baños: 3
- 453.34 M2
Avenida Pellegrini 3864 Piso 9 Unidad 2
- $230,375/USD
- Beds: 2
- Baños: 2
- 97.67 M2
Zeballos 2547 – Unidad 2
- $259,000/USD
- Beds: 3
- Baños: 3
- 207.52 M2
Zeballos 2547 -Unidad 1
- $249,000/USD
- Beds: 3
- Baños: 3
- 197.84 M2





























