Consultar por esta propiedad
Descripción
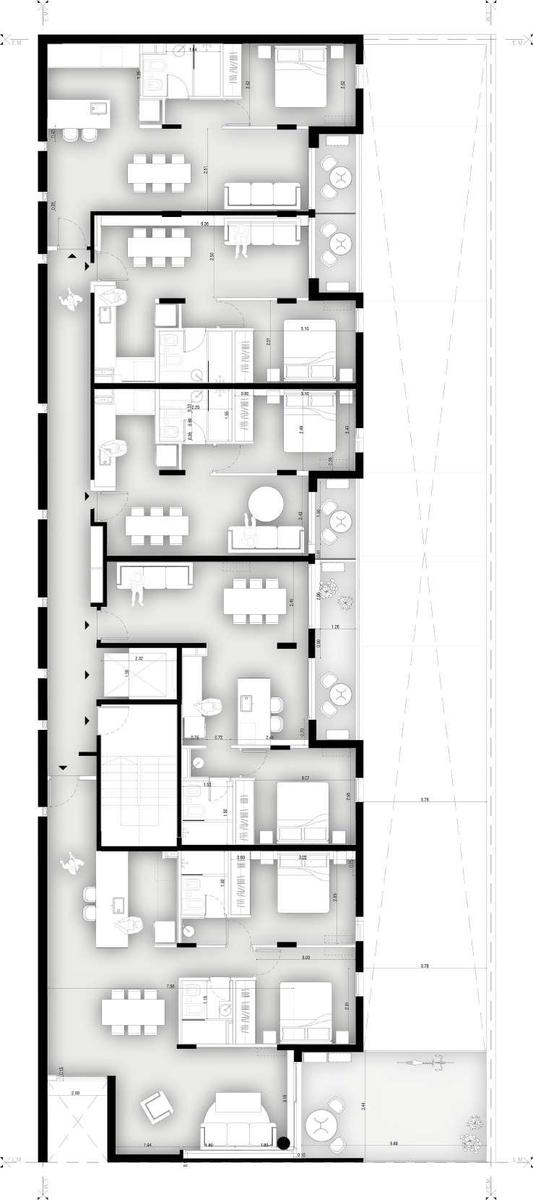
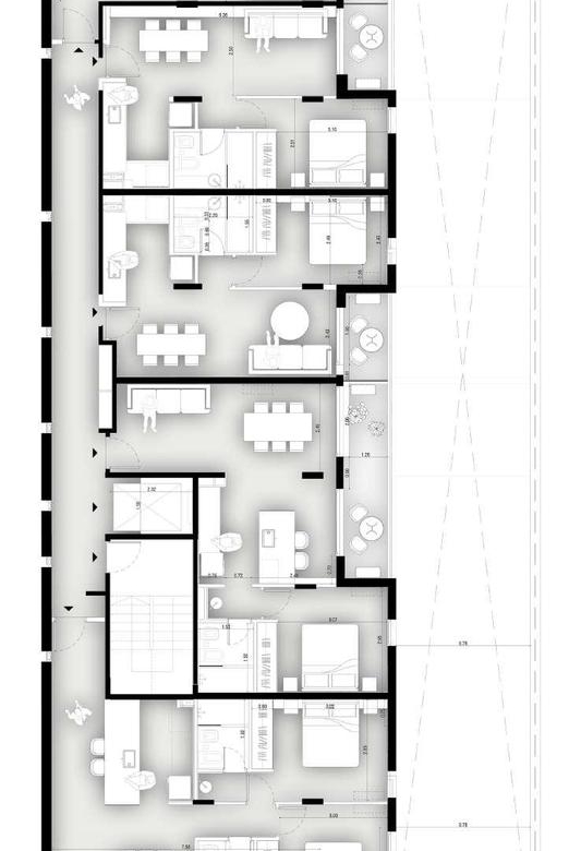
¡Bienvenido al corazón de Pichincha! Descubre este magnífico departamento de 1 dormitorio en venta, ubicado en Brown 2734, Piso 3, Unidad 4. Este moderno espacio ofrece un living comedor amplio y luminoso, con cocina semi-integrada por una elegante barra. El dormitorio principal es una suite con vestidor, mientras que el segundo dormitorio cuenta con un práctico placard. Ambos baños son completos y de primera calidad.
El edificio, recién estrenado, se eleva en una de las zonas más atractivas y con mayor proyección de Rosario. Con solo 4 pisos, alberga unidades de 1, 2 y 3 dormitorios, además de locales y oficinas en planta baja. Perfecto para quien busca el equilibrio entre la tranquilidad residencial y la vibrante vida cultural de la ciudad.
Las terminaciones son de excelencia: cocina amoblada con melamina, mesadas de granito, horno empotrado y anafe de marcas reconocidas. Los baños están revestidos con cerámica/porcelanato de primera, y los artefactos sanitarios son de alta calidad. Los dormitorios cuentan con pisos vinílicos y frentes de placard de melamina.
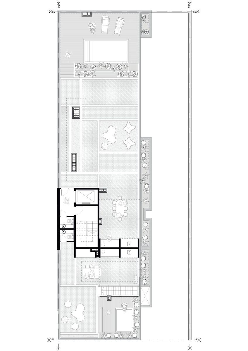
Disfruta de los amenities como terraza, quincho, piscina, parrillero y un espacio de coworking. Además, el departamento incluye un estacionamiento cubierto.
La entrega es inmediata, y la ubicación estratégica ofrece todos los servicios esenciales: agua corriente, cloaca, gas natural, electricidad, entre otros.
No te pierdas esta oportunidad única de vivir en un lugar que combina confort, estilo y ubicación privilegiada. Contáctanos para más información.
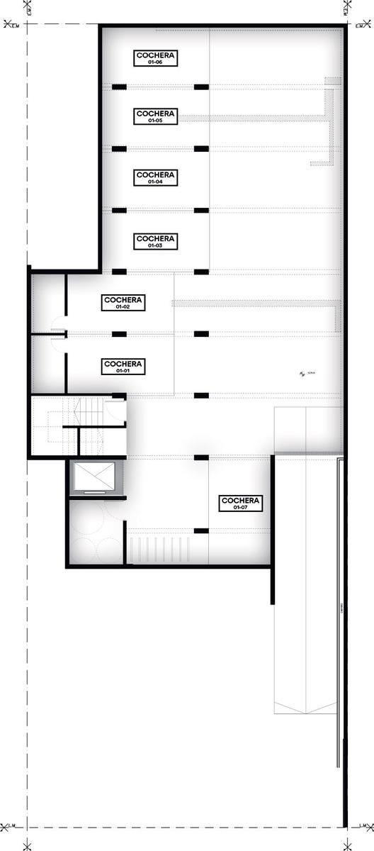
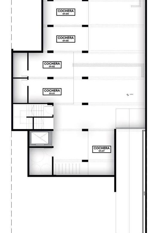
Ultima cochera cubierta no incluida en el valor de publicacion: U$S 20.000
- Departamento
- Tipo de propiedad
- 1
- Dormitorio
- 1
- Baño
- 1
- Cochera
- 44
- M2
Detalles
- ID propiedad 7819195
- Precio $100,050/USD
- Superficie 44 M2
- Sup. terreno 44 M2
- Dormitorio 1
- Ambientes 2
- Baño 1
- Cochera 1
- Estado propiedad Comercializando, Venta
- Tipo Propiedad Departamento
Características
- Accesibilidad C/ Movilidad Reducida
- Agua Corriente
- Agua Potable
- Alarma
- Alumbrado Público
- Amoblado
- Apto Mascotas
- Armarios Empotrados
- Balcón
- Balcón Terraza
- Cable
- Cloaca
- Cocina
- Cocina Americana
- Comedor Diario
- Electricidad
- Escritorio
- Gas Natural
- Internet
- Lavadero
- Lavandería
- Living Comedor
- Luminoso
- Palier
- Pavimento
- Persianas
- Potencial alto para alquilar
- Red De Desagües Pluviales
- Seguridad
- Teléfono
- Terraza
- TV Cable En El Edificio
- TV Por Satélite
- Ventanas De Aluminio
- Video Cámaras
- Wifi
- Zonas Verdes
Agendar una visita
Similares
Cordoba 3633 Piso 2 Departamento 2
- $36,000/USD
- Bed: 0
- Baño: 1
- 27 M2
Paraguay 1459 Piso 2 Unidad A
- $109,000/USD
- Beds: 2
- Baño: 1
- 58 M2
Sarmiento 1748 Piso 2 Dpto 6
- $290,000/ARS
- Bed: 0
- Baño: 1
- 23 M2
Pueyrredon 145 P4 A – 3 Dormitorios Terraza Exclusiva
- $655,800/USD
- Beds: 3
- Baños: 2
- 269 M2










