Consultar por esta propiedad
Descripción
Venta/Financiación Departamento 1 Dormitorios A Estrenar. Rosario
ZONA: Se encuentra ubicado sobre calle Salta, esquina Cafferata .A metros de Pichincha y el Parque Scalabrini Ortiz. Rápido acceso a todos los puntos de la ciudad y bicisenda por calle Salta hasta el microcentro.
PROYECTO:
Edificio de PB y 10 pisos, con cocheras en SS y PB, Local comercial en PB, oficina en entrepiso con acceso independiente, y 10 pisos con 45 departamentos de viviendas. Dos ascensores de última generación. Prevé control de acceso
Planta Baja: La misma cuenta con un local comercial con acceso independiente sobre calle Cafferata, acceso a las cocheras sobre calle Salta y un amplio Hall de Ingreso ubicado en la ochava donde se encuentran 2 ascensores conectando desde el Subsuelo de cocheras hasta la Azotea con los Amenities.
Planta Entrepiso: Cuenta con una amplia oficina de 144 metros cuadrados, un baño, un office e ingreso independiente por escalera en calle Cafferata
Piso 1: Cuenta con 5 unidades, 4 amplias unidades de 1 dormitorio que van desde los 34m2 hasta los 76,50m2 y una unidad monoambiente de 34m2
Piso 2 al 5: Cuenta con 5 unidades todas con balcón de las cuales 4 son unidades de 1 dormitorio y una unidad monoambiente.
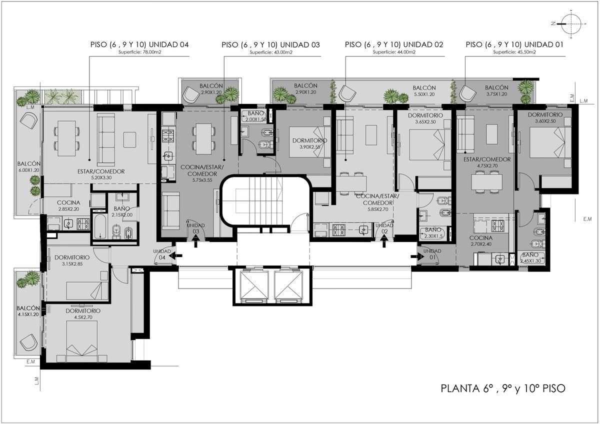
Piso 6 al 10: Cuenta con 4 unidades, 3 unidades de 1 dormitorio frente a calle Cafferata con amplios balcones y una unidad de 2 dormitorios frente a calle Salta con 2 balcones.
Planta Azotea: En la Azotea se encuentran los amenities, el cual cuenta con una pileta estilo espejo de agua, aspersores y cascada de agua, sector de verde de solárium, un sector de juegos para los mas chicos de Crucijuego, un Living Fogonero, y espacio de Quincho con parrilla.
UNIDAD 01-02:
Departamento ubicado sobre en el piso 1, compuesto por living comedor y cocina integrada con Alacenas y bajo-mesadas de diseño, mesada en granito negro boreal, horno embutido y anafe separados sobre mesada con espacio para purificador.
Estar-comedor, baño completo, dormitorios con placar empotrado y frente de calle Cafferata. La unidad cuenta con un patio de uso exclusivo
AMENITIES:
- Pileta estilo espejo de Agua
- Solárium con espacio verde
- Quincho con parrilla
- Kids Zone con juegos de Crucijuegos
- Living Fogonero
- Control de acceso
ACTUALMENTE SE ENUENTRA ALQUILADO HASTA JUNIO 2026
NOTA: Las medidas informadas incluyen el 50% de los muros medianeros y el 100% de los muros interiores. No es permitida su utilización comercial. Las medidas y superficies expuestas son estimativas y a corroborar con sus respectivos planos y títulos. La publicación de este inmueble es a solo título informativo, la venta de la propiedad está supeditada a que el propietario cumplimente el trámite ante la AFIP para la obtención del Número de COTI correspondiente. La información no es contractual.
- Departamento
- Tipo de propiedad
- 1
- Dormitorio
- 1
- Baño
- 48
- M2
Detalles
- ID propiedad 6088995
- Precio $75,500/USD
- Superficie 48 M2
- Sup. terreno 48 M2
- Dormitorio 1
- Ambientes 2
- Baño 1
- Estado propiedad Comercializando, Venta
- Tipo Propiedad Departamento
Características
- Agua Caliente Individual
- Agua Corriente
- Agua Potable
- Alarma
- Alumbrado Público
- Ascensor
- Balcón
- Cable
- Calefacción Por Gas
- Celular
- Cloaca
- Cochera Opcional
- Cocina
- Cocina Americana
- Comedor Diario
- Control De Acceso
- Electricidad
- Galería
- Gas Natural
- Internet
- Lavadero
- Living Comedor
- Palier
- Parrilla Techada
- Patio
- Pavimento
- Picos De Gas
- Pileta
- Preinstalación De Aire Acondicionado
- Quincho
- Red De Desagües Pluviales
- Riego Automático
- Seguridad Digital
- Teléfono
- Termo De Gas
- Terraza
- Video Cámaras
- Wifi
Agendar una visita
Similares
Maipu 2112 Piso 1
- $75,000/USD
- Beds: 2
- Baño: 1
- 54.15 M2
Salta 2448
- $500,000/ARS
- Bed: 0
- Baño: 1
- 40 M2
Alvear 543 – Piso 8 | 2 Dormitorios | Terraza exclusiva
- $344,170/USD
- Beds: 2
- Baños: 2
- 119.34 M2
San Martin 370 Piso 3 Departamento 3
- $230,000/USD
- Beds: 2
- Baños: 2
- 93 M2




















