Consultar por esta propiedad
Descripción
Venta Casa de Pasillo 3 Dormitorios con Pileta. No PH. Pichincha
Ubicación privilegiada de la ciudad, sobre calle Brown, entre las calles Ovidio Lagos y Callao, en Barrio Pichincha. Rodeado de propuestas gastronómica, comercial y cultural, con proximidad a áreas verdes de descanso pero sin alejarse del ritmo urbano. También cercano a varias lineas de transporte con excelente conectividad ofreciendo practicidad y calidad de vida.
En el pasillo hay 6 unidades. Esta pertenece a la Unidad 4. No PH.
Esta casa completamente a estrenar nos trae una propuesta moderna y una organización funcional.
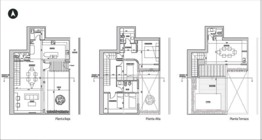
PLANTA BAJA
Patio de ingreso, al acceder nos encontramos con un espacio verde que recibe luz natural y aire libre.Cuenta con una cocina con isla que se presenta como un ambiente independiente y funcional.Estar comedor amplio, siendo un espacio confortable y de disfrute.También cuenta con un toilette, y lavadero independiente con acceso desde la cocina.
PLANTA ALTADormitorio suite, ofreciendo de este modo comodidad y privacidad.Dos dormitorios equipados con placares empotrados de estilo moderno y amplia capacidad de guardado, estos espacios comparten un baño completo de uso común.Detalles y terminaciones Importantes: los baños fueron diseñados con revestimientos, griferías y sanitarios de alta calidad, priorizando la durabilidad y el diseño.
TERRAZACuenta con un quincho amplio y un espacio equipado con parrilla, mesada con bacha y lugar suficiente para colocar una gran mesa, ideal para reuniones.
Solarium y piscina: este espacio invita a relajarse y disfrutar en la privacidad de tu hogar. Descanso, reuniones y actividad social.
La casa fue construida desde sus cimientos.
ESPECIFICACIONES CONSTRUCTIVAS: estructura de Hormigón Armado, mampostería en ladrillos. Terminaciones en yesería y/o placas en paredes, y cielorraso suspendido de durlock.
ABERTURAS Cerramientos de Aluminio de alta prestación. Vidrios de DVH (doble vidriado hermético, sujeto a modelo de ventana).
PUERTAS Puerta de ingreso de seguridad. Puertas interiores de alta prestación con marcos y hoja de WPC.
PISOS Y REVESTIMIENTOS Pisos de Porcelanato, revestimientos y zócalos EPS de primera línea.
CLIMATIZACIÓN Se prevé la pre instalación de aires acondicionados. Se prevé la pre instalación de radiadores e instalación de Caldera.
MOBILIARIO DE COCINA Alacena y bajo mesada de diseño con iluminación en mobiliario. Mesada de Silestone o similar calidad. Bacha de acero inoxidable con griferías de primera línea. Espacio disponible para purificador y/o extractor de cocina. Horno eléctrico y anafe a gas embutido.
DORMITORIOS Y BAÑOS Placares completos con frentes corredizos o de abrir. Diseño interior con estantes, cajones y barrales. Los baños cuentan con mampara en sus duchas, vanitory completo y espejos. Sanitarios y griferías de primera marca.
JARDÍN Y TERRAZA Jardín con intervención de paisajismo en Planta Baja. En la última planta, Quincho con espacio para parrilla, mesada con bacha y toilette. En el exterior se ubica una pérgola, la pileta y un solárium con intervención de canteros y verde.
SERVICIOS Medidor de agua independiente, tablero eléctrico independiente y servicio de Litoral Gas habilitado. Climatización y agua caliente prevista por caldera.
DOMOTICA Central de control: pantalla táctil para controlar luces, acondicionamiento, cámaras de seguridad, portero, sensores, entre otros. Diseñado en función a cada proyecto. Integración de comando por voz, tipo Alexa o Google assistant. Sistema de iluminación interior y exterior: circuitos de iluminación on/off independientes. Cámaras se seguridad y sensores: diseñadas en función al proyecto. Frente de portero con cámara.
- Casa
- Tipo de propiedad
- 3
- Dormitorios
- 1
- Baño
- 223
- M2
Detalles
- ID propiedad 7813625
- Precio $295,000/USD
- Superficie 223 M2
- Sup. terreno 169 M2
- Dormitorios 3
- Ambientes 4
- Baño 1
- Estado propiedad Comercializando, Venta
- Tipo Propiedad Casa
Características
- Agua Corriente
- Agua Potable
- Alumbrado Público
- Amenities
- Apto Mascotas
- Armarios Empotrados
- Cable
- Calefacción
- Cloaca
- Cocina
- Electricidad
- Energia Trifasica
- Gas Natural
- Internet
- Lavadero
- Lavandería
- Living Comedor
- Luminoso
- Parrilla
- Patio
- Pavimento
- Pileta
- Quincho
- Solarium
- Terraza
- Toilette
- Ubicación Tranquila
- Ventanas Doble Acristalamiento
- Vestidor
- Wifi
Agendar una visita
Similares
Lote 416 Eco Lagos. General Lagos
- $24,000/USD
- Bed: 0
- Baño: 0
- 300 M2
Cordoba 3629 Planta Baja Apto Profesional
- $51,000/USD
- Bed: 1
- Baño: 1
- 37.84 M2
Brown 2734 Piso 4 Departamento 3
- $236,644/USD
- Beds: 2
- Baños: 2
- 100.7 M2
Centeno 720 – 2 Dormitorios Mas Comodin
- $89,000/USD
- Beds: 3
- Baños: 2
- 138 M2

