Consultar por esta propiedad
Descripción
APTO CREDITO HIPOTECARIO
APTO BLANQUEO LEY 27.613
Venta/Financiacion Departamento Dos Dormitorios Terraza Exclusiva Amenities. Centro
Unidad: 09-01
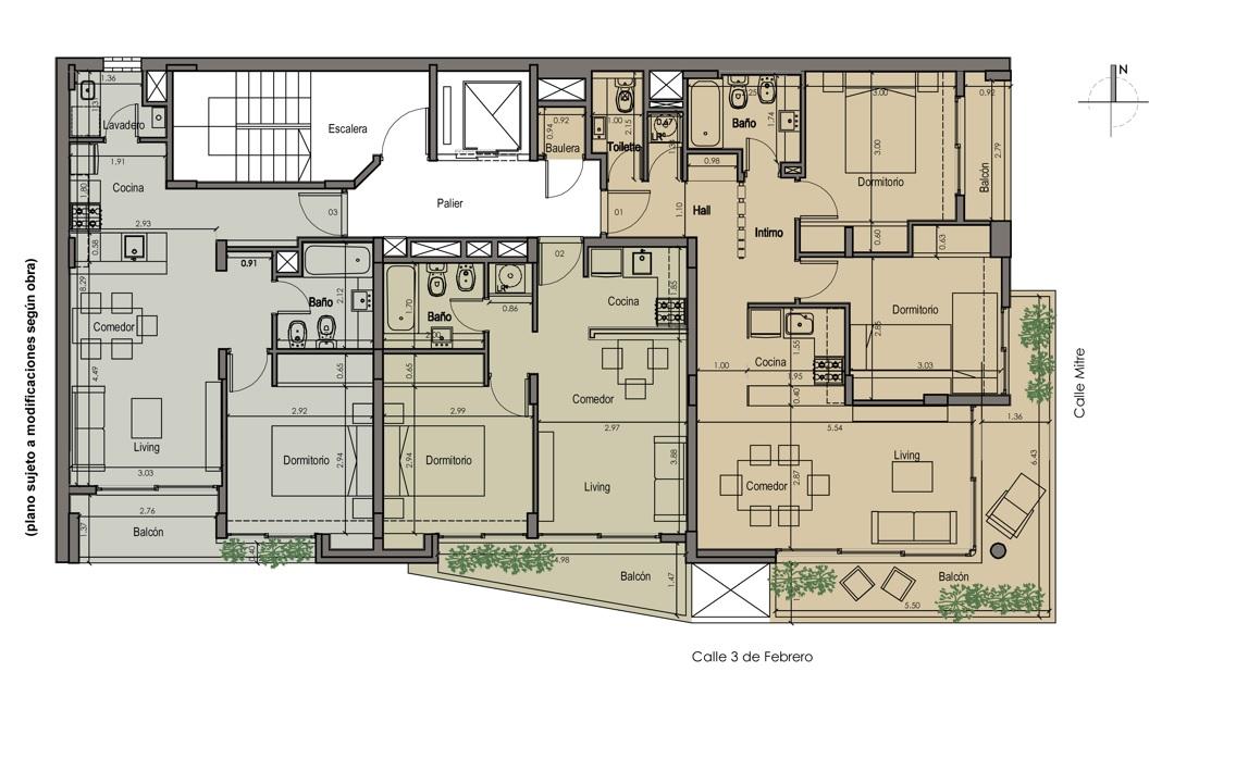
El departamento se compone de estar-comedor, cocina, dos dormitorios, un baño principal, un baño de servicio, dos balcones y una baulera.
Ubicado en el corazón de Rosario, a pasos de la peatonal Córdoba y de Av. Pellegrini. ubicado en la esquina de 3 de febrero y Mitre, con todas las unidades con vista a la calle.
El edificio cuenta con un local comercial de 96 m2, de planta baja c/entrepiso y una torre de 9 pisos con departamentos de uno o dos dormitorios y azotea privada.
Este edificio ha sido ejecutado en toda su envolvente con materiales que responden a requerimientos de eficiencia energética. Con amplios balcones, finas terminaciones de yesería en todos los ambientes, pisos y revestimientos de porcelanato, amoblamientos de cocina completos con bajo mesada y alacenas, artefactos de cocina y calefones de primera marca, puertas interiores de madera y frentes de placares en dormitorios, espacio e instalación de lavarropas, cañería para instalación de tv por cable y teléfono.
Instalación de cañería de aire acondicionado Split, baños totalmente equipados con sanitarios y griferías de primera marca, ascensor de primera generación, con puertas automáticas y revestimiento de acero inoxidable.
Hall ingreso con control de acceso y sistema de video monitoreado.
Ascensores última generación, diseño moderno, puertas automáticas, revestimiento de acero inoxidable y espejos totalizados y con frecuencia variable.
Envolvente (mampostería, carpintería y techo) materializado según requerimiento de eficiencia energética.
El departamento posee baño y cocina totalmente equipados.
Aberturas de madera enchapada en roble.
Preinstalación para colocación de Split.
Aberturas de aluminio sistema Hydro, modelo ha62 con vidrios según requerimiento de eficiencia energética.Cortinas de enrollar automatizadas.
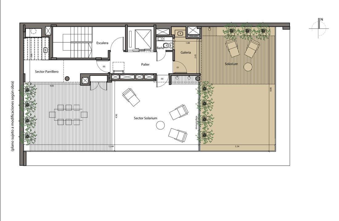
Amenities en terraza, solárium y parrillero.
Cochera disponible número 9, valor U$S 20.000 (no incluida en el precio de publicacion)
- Departamento
- Tipo de propiedad
- 2
- Dormitorios
- 1
- Baño
- 1
- Cochera
- 139
- M2
Detalles
- ID propiedad 6419544
- Precio $212,470/USD
- Superficie 139 M2
- Sup. terreno 84.1 M2
- Dormitorios 2
- Ambientes 3
- Baño 1
- Cochera 1
- Estado propiedad Comercializando, Venta
- Tipo Propiedad Departamento
Características
- Accesibilidad C/ Movilidad Reducida
- Agua Caliente Individual
- Agua Corriente
- Agua Potable
- Alumbrado Público
- Amenities
- Apto Mascotas
- Área de relax
- Área recreativa
- Armarios Empotrados
- Ascensor
- Balcón
- Balcón Terraza
- Baulera individual
- Cable
- Calefacción
- Calefacción Por Gas
- Calefacción tiro balanceado
- Carpintería De Aluminio
- Categoría
- Celular
- Cloaca
- Cocina
- Comedor Diario
- Electricidad
- Escritura Inmediata
- Galería
- Garagistas
- Gas Natural
- Hall
- Internet
- Lavadero
- Living Comedor
- Luminoso
- Palier
- Parrilla
- Pavimento
- Preinstalación De Aire Acondicionado
- Preinstalación de Calefacción
- Red De Desagües Pluviales
- Seguridad
- Seguridad 24hs
- Seguridad Digital
- Solarium
- Teléfono
- Terraza
- Toilette
- Ventanas De Aluminio
- Wifi
Agendar una visita
Similares
Cordoba 3633 Piso 2 Departamento 2
- $36,000/USD
- Bed: 0
- Baño: 1
- 27 M2
Paraguay 1459 Piso 2 Unidad A
- $109,000/USD
- Beds: 2
- Baño: 1
- 58 M2
Sarmiento 1748 Piso 2 Dpto 6
- $290,000/ARS
- Bed: 0
- Baño: 1
- 23 M2
Pueyrredon 145 P4 A – 3 Dormitorios Terraza Exclusiva
- $655,800/USD
- Beds: 3
- Baños: 2
- 269 M2