Consultar por esta propiedad
Descripción
Venta Departamento Dos Dormitorios Dos Patios Planta Baja Reciclado. Centro
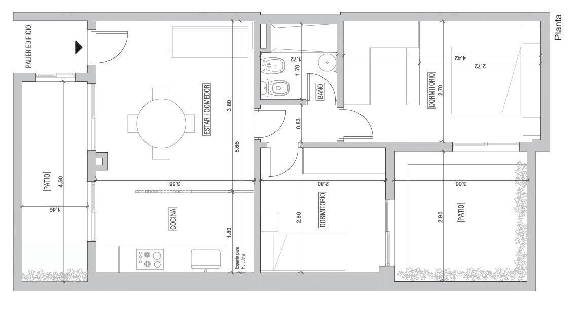
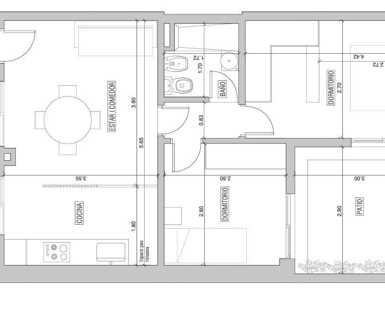
Unidad ubicada en la planta baja del edificio situado en calle San Juan 953 de la ciudad de Rosario, destinada a vivienda familiar, con acceso por la entrada común.
En el ingreso a la propiedad nos encontramos con un amplio espacio de estar-comedor, y una cocina semi integrada. En su frente cuenta con un patio, que aporta amplitud e iluminación.Dispone de dos dormitorios equipados con amplios placares, que ofrecen gran capacidad de guardado. Además, cuenta con un baño completo.Desde los mismos, se accede a un segundo patio. Esta característica garantiza una excelente ventilación e inmejorable iluminación natural.Una propuesta que combina comodidad, calidad y confort.La unidad cuenta con aproximadamente aproximadamente 49 m2 cubiertos y 15.30 m2 en sus patios.
- Departamento
- Tipo de propiedad
- 2
- Dormitorios
- 1
- Baño
- 64
- M2
Detalles
- ID propiedad 7830099
- Precio $92,500/USD
- Superficie 64 M2
- Sup. terreno 49 M2
- Dormitorios 2
- Ambientes 3
- Baño 1
- Estado propiedad Comercializando, Venta
- Tipo Propiedad Departamento
Características
- Accesibilidad C/ Movilidad Reducida
- Agua Corriente
- Agua Potable
- Alumbrado Público
- Cable
- Cloaca
- Cocina
- Cocina Americana
- Comedor Diario
- Electricidad
- Escritura Inmediata
- Gas Natural
- Internet
- Jardín
- Lavadero
- Living Comedor
- Luminoso
- Parrilla
- Patio
- Pavimento
- Persianas
- Pileta
- Potencial alto para alquilar
- Red De Desagües Pluviales
- Seguridad
- Teléfono
- TV Cable En El Edificio
- TV Por Satélite
- Ventanas De Aluminio
- Ventanas Doble Acristalamiento
- Wifi
- Zona apta para turismo
Agendar una visita
Similares
Pichincha 77 Rosario
- $440,000/USD
- Beds: 3
- Baños: 3
- 453.34 M2
Avenida Pellegrini 3864 Piso 9 Unidad 2
- $230,375/USD
- Beds: 2
- Baños: 2
- 97.67 M2
Zeballos 2547 – Unidad 2
- $259,000/USD
- Beds: 3
- Baños: 3
- 207.52 M2
Zeballos 2547 -Unidad 1
- $249,000/USD
- Beds: 3
- Baños: 3
- 197.84 M2



























