Consultar por esta propiedad
Descripción
Venta/Financiación Departamento dúplex 2 Dormitorios de Categoría. Pichincha
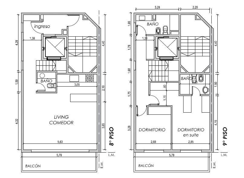
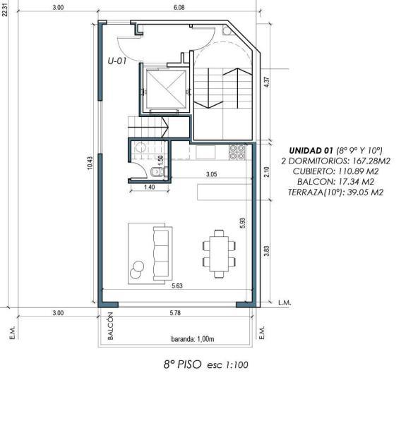
Piso 8, 9 y 10 – Unidad A – Frentista
GENERALIDADES
El proyecto se distribuye en planta baja y 9 pisos.
Es un tipo de edificación en el que se hace hincapié en el confort térmico y acústico, para esto utilizamos materiales como retak, dvh en las aberturas, doble muro, persianas eléctricas y toldos en balcón según cada caso.
Cuenta con dos plantas de cochera, una en el subsuelo y otra en planta baja.
En el primer piso se ubica al frente la oficina, la misma tiene doble ingreso, uno por el ingreso directo de calle alvear y su segundo ingreso por el palier del primer piso. En el contra frente se encuentran los amenitis siendo gimnasio, quincho y sector de patios descubierto y semi descubierto.
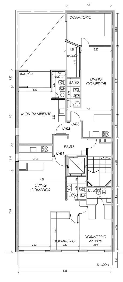
– Desde el piso 2 hasta el piso 4 se desarrollan unidades de 2 dormitorios frentistas y unidades de 1 dormitorio y monoambiente contra frentistas.
– en el piso 5 se encuentran las unidades de 2 dormitorios.
-Unidad 6º a: es un dúplex de 3 dormitorios. con terraza exclusiva. dicho departamento se desarrolla en los pisos 6 y 7.
-Unidad 6º b: 2 dormitorios, con terraza exclusiva que se desarrolla también en el 7º piso.
-Unidad 8º a: 2 dormitorios, desarrollado en dicho piso cocina living comedor, en el piso 9 los dormitorios y en el piso 10 terraza exclusiva con ingreso directo desde el departamento.
FECHA DE ENTREGA
Julio 2026.
TERMINACIONES
– Aberturas exteriores en aluminio Aluar Línea Modena.
– Sistema de calefacción por radiadores
– Cortinas de enrollar motorizadas.
– Puertas de seguridad con 5 puntos de contacto
– Porcelanato de alto tránsito en living, cocina y comedor
– Piso flotante en habitaciones
– Placar incorporado con puertas corredizas en dormitorios
– Mesada de granito
– Muebles de cocina con alacena y bajo mesada
-Horno y anafe Longvie de acero inoxidable
– Artefactos Ferrum en baño y grifería FV
– Preinstalación de aire acondicionado
– Paredes interiores revestidas en yeso
– Zócalos de madera
COCHERA: Opcional USD21.840
FORMA DE PAGO
Contado o Financiado: Se ingresa al fideicomiso, con un 30 % del valor total de la unidad, y el resto se divide en cuotas que se realizan durante los 36 meses de construcción de obra (es decir mensualmente), las cuales, se incrementan con el índice CAC.
- Departamento
- Tipo de propiedad
- 2
- Dormitorios
- 1
- Baño
- 158.39
- M2
- -1
- Antigüedad
Detalles
- ID propiedad 7298291
- Precio $306,700/USD
- Superficie 158.39 M2
- Sup. terreno 119.34 M2
- Dormitorios 2
- Ambientes 4
- Baño 1
- Antiguedad -1
- Estado propiedad Comercializando, Venta
- Tipo Propiedad Departamento
Características
Agendar una visita
Similares
Domingo Borghi 501 – Fray Luis Beltran
- $48,000/USD
- Beds: 5
- Baños: 2
- 247.48 M2
Sarmiento 1575- Locales Comerciales
- $194,457/USD
- Bed: 0
- Baño: 1
- 183 M2
Cafferata 342 – Casa de Pasillo 2 dormitorios
- $20,000/ARS
- Beds: 2
- Baño: 1
- 40.15 M2
Neuquen 161
- $800,000/USD
- Beds: 2
- Baño: 1
- 143 M2






















