Consultar por esta propiedad
Descripción
Venta/Financiación Departamento 1 Dormitorios A Estrenar. Rosario
ZONA: Se encuentra ubicado sobre calle Salta, esquina Cafferata .A metros de Pichincha y el Parque Scalabrini Ortiz. Rápido acceso a todos los puntos de la ciudad y bicisenda por calle Salta hasta el microcentro.
PROYECTO:
Edificio de PB y 10 pisos, con cocheras en SS y PB, Local comercial en PB, oficina en entrepiso con acceso independiente, y 10 pisos con 45 departamentos de viviendas. Dos ascensores de última generación. Prevé control de acceso
Planta Baja: La misma cuenta con un local comercial con acceso independiente sobre calle Cafferata, acceso a las cocheras sobre calle Salta y un amplio Hall de Ingreso ubicado en la ochava donde se encuentran 2 ascensores conectando desde el Subsuelo de cocheras hasta la Azotea con los Amenities.
Planta Entrepiso: Cuenta con una amplia oficina de 144 metros cuadrados, un baño, un office e ingreso independiente por escalera en calle Cafferata
Piso 1: Cuenta con 5 unidades, 4 amplias unidades de 1 dormitorio que van desde los 34m2 hasta los 76,50m2 y una unidad monoambiente de 34m2
Piso 2 al 5: Cuenta con 5 unidades todas con balcón de las cuales 4 son unidades de 1 dormitorio y una unidad monoambiente.
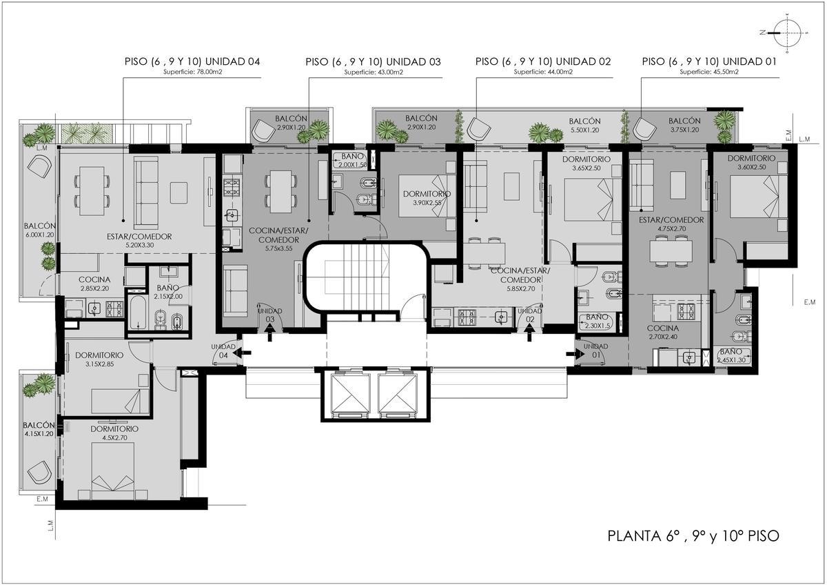
Piso 6 al 10: Cuenta con 4 unidades, 3 unidades de 1 dormitorio frente a calle Cafferata con amplios balcones y una unidad de 2 dormitorios frente a calle Salta con 2 balcones.
Planta Azotea: En la Azotea se encuentran los amenities, el cual cuenta con una pileta estilo espejo de agua, aspersores y cascada de agua, sector de verde de solárium, un sector de juegos para los mas chicos de Crucijuego, un Living Fogonero, y espacio de Quincho con parrilla.
AMENITIES:
– Pileta estilo espejo de Agua
– Solárium con espacio verde
– Quincho con parrilla
– Kids Zone con juegos de Crucijuegos
– Living Fogonero
– Control de acceso
UNIDADES DISPONIBLES DE 1 DORMITORIO:
01 – 02 – U$S 75.500 (Con Patio)
04 – 03 – USD 75.000 (Con Balcón)
08-01 – USD 78.000 (Con Balcón)
10 – 01 – U$S 80 .000 (Con Balcón)
- Departamento
- Tipo de propiedad
- 1
- Dormitorio
- 1
- Baño
- 45.5
- M2
Detalles
- ID propiedad 7305144
- Precio $80,000/USD
- Superficie 45.5 M2
- Sup. terreno 45.5 M2
- Dormitorio 1
- Ambientes 2
- Baño 1
- Estado propiedad Comercializando, Venta
- Tipo Propiedad Departamento
Características
- Accesibilidad C/ Movilidad Reducida
- Agua Caliente Individual
- Agua Corriente
- Agua Potable
- Aire Acondicionado Individual
- Alarma
- Alumbrado Público
- Amenities
- Amoblado
- Apto Mascotas
- Armarios Empotrados
- Ascensor
- Balcón
- Balcón Terraza
- Cable
- Calefacción
- Calefacción Por Gas
- Carpintería De Aluminio
- Categoría
- Cloaca
- Cochera Fija
- Cochera Opcional
- Cocina
- Cocina Americana
- Colegio
- Comedor Diario
- Control De Acceso
- Doble Acristalamiento
- Electricidad
- Gas Natural
- Internet
- Lavadero
- Lavandería
- Living Comedor
- Luminoso
- Palier
- Parrilla
- Parrilla Techada
- Pavimento
- Picos De Gas
- Pileta
- Preinstalación De Aire Acondicionado
- Quincho
- Red De Desagües Pluviales
- Riego Automático
- Seguridad
- Seguridad Digital
- Solarium
- SUM
- Teléfono
- Termo De Gas
- Terraza
- TV Cable En El Edificio
- TV Por Satélite
- Ventanas De Aluminio
- Ventanas Doble Acristalamiento
- Video Cámaras
- Wifi
- Zonas Verdes
Agendar una visita
Similares
Avenida Arturo Illia 397
- $530,000/USD
- Beds: 3
- Baños: 3
- 800 M2
Avenida Arturo Illia 397
- $530,000/USD
- Beds: 3
- Baños: 3
- 800 M2
San Patricio 824 – Dpto 2
- $70,000/USD
- Beds: 2
- Baño: 1
- 115 M2
Urquiza y Corrientes – Ibarlucea Centro
- $28,000/USD
- Bed: 0
- Baño: 0
- 300 M2